Проектирование металлической балочной клеткиРефераты >> Строительство >> Проектирование металлической балочной клетки
Толщину ребра оголовка определим из условия сопротивлению на смятие под прямым опорным давлением.
При tp =14мм Run =48 кН/см2
Проверяем ребра на срез на 50% от действующего усилия.
Размеры плиты принимаем конструктивно в зависимости от сечения колонны.
250 ´230 ´ 20 мм
Главные балки с колонной соединяем болтами нормальной точности. dб =20мм.
Расчет башмака для колонны сквозного сечения.
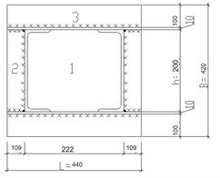
Для колонны сквозного сечения принимаю базу с распределительным устройством. Оно состоит из плиты и траверсы.
Давление под подошвой фундамента распределяется равномерно.
Траверсы делят плиту на ряд участков.
1. Плита опирается на 4 канта. Формула Галеркина:
a=200 мм, b=222 мм
по [т.8.6/5]
2. Плита опирается на 3 канта.
по [т.8.6/1] значений нет.
плита рассчитывается как консоль.
3. Участок 3 рассчитываем как консоль.
Проводим анализ (для проверки по т.6 п.11 СНиП):
tпл =10…20мм Ryn =33кН/см2 >29кН/см2 Þgс =1
tпл =20…40мм Ryn =31кН/см2 >29кН/см2 Þgс =1 Пусть tпл =20…40мм Ry =31 кН/см2
Принимаем tпл = 30мм
Определяем высоту траверсы из условия сварных швов.
Сварка ручная.Э50.
Проверка траверсы.
Прочность траверсы обеспечена.
Принимаем четыре фундаментных болта, т.к. у нас жесткое крепление.
dф.б. =30 мм
dотв =45 мм
Сталь болтов О9Г2С по ГОСТ 19281-73*
СПИСОК ЛИТЕРАТУРЫ
1. СНиП II-23-81*. Стальные конструкции / Госстрой СССР. – М.: ЦИТП Госстроя СССР, 1990. – 96 с.
2. СНиП 2.01.07-85*. Нагрузки и воздействия / Минстрой России. – М.: ГП ЦПП, 2001. – 44 с.
3. СНиП 2.01.07-84*. Бетонные и железобетонные конструкции. – М.: Стройиздат, 2000. – 80с.
4. Мандриков А.П. Примеры расчета металлических конструкций: Учеб. пособие для техникумов. 2-е изд., перераб. и доп. – М.: Стройиздат, 1991. – 431 с.
5. Металлические конструкции. Общий курс: Учебник для вузов/ Под общ. ред. Е.И.Беленя. 6-е изд., перераб. и доп. – М.: Стройиздат, 1986. – 560с.
6. Металлические конструкции. В 3 т. Т. 1. Элементы стальных конструкций: Учеб. пособие для строит. вузов / Под ред. В.В.Горева. – М.: Высш. шк., 2004. – 551 с.
7. Металлические конструкции. В 3 т. Т. 1. Общая часть. (Справочник проектировщика) / Под общ. ред. В.В.Кузнецова (ЦНИИ проектстальконструкция им. Н.П.Мельникова) – М.: изд-во АСВ, 1988. – 576 с.
8. Свод правил по проектированию и строительству. СП 53-102-2004. Общие правила пректирования стальных конструкций/ Госстрой России – М., 2005. – 132 с.
