Расчет и проектирование фундаментов мелкого заложения и свайных фундаментовРефераты >> Строительство >> Расчет и проектирование фундаментов мелкого заложения и свайных фундаментов
III. 1) При b = 3,17 м, R = 587,26 кПа
2) A =
м2
3)
м
Прекращаем подбор.
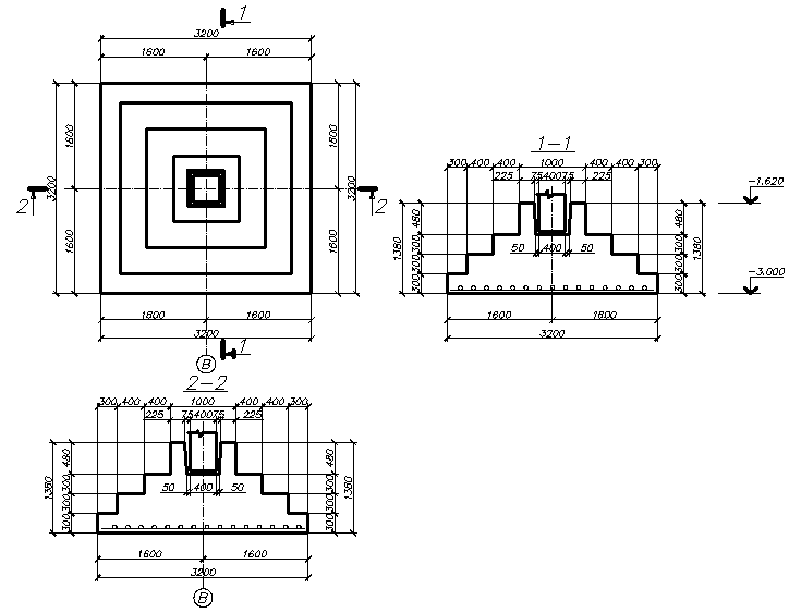
Вычисленные размеры фундамента в плане округляют в большую сторону до кратных 0,1м для гражданских зданий, т.е. принимаем b = 3,2 м, а l = 3,2 м, соответственно A =
м2 R = 587,26 кПа.
2.1 Проверяем контактные напряжения.
1.
;
2. Проверяются контактные напряжения по подошве фундаментов по условию:
кПа
кПа
N, Mx, My - усилия, передаваемые на фундамент от сооружения (по заданию или расчету рамы)
Wx, Wy - момент сопротивления подошвы фундамента
м3
3. Конструирование фундамента
По заданию вид колонны – железобетонная, размерами 0,4 х 0,4 м.
3.1. Тип фундамента назначают из условия жесткости
мм
мм
Фундамент принимаем с подколонником.
3.2. Размеры подколонника в плане назначаются конструктивно и принимаются равными:
bпк= bк+0,6=0,4+0,6=1 м
lпк=lк+0,6 = 0,4+0,6 =1 м
Для выбранного типа фундаментов определяется высота конструкции фундамента или его плитной части по формуле:
,
м
где
l, b – размеры подошвы фундамента в плане;
- размеры сечения колоны (по заданию).
- расчётное сопротивление бетона на растяжение, кПа;
- среднее давление подошвы фундамента, кПа.
Реальная высота (с учётом защитного слоя) вычисляется по формуле:
Принимаем оптимальную высоту, равную 900 мм (кратную 150 мм)
При данной высоте конструктивно целесообразно установить 3 ступени по – 300 мм.
4. Расчет фундамента на продавливание
Проверяем условие жесткости конструкции фундамента по условию:
- фундамент гибкий.
Продавливание происходит по поверхности усеченной пирамиды, верхним основанием которой является нижнее сечение основание подколонника или колонны, а грани расположены под углом 45°
где: Aтр – площадь поверхности грани пирамиды продавливания;
Aпр – площадь продавливания – площадь подошвы фундамента за пределами пирамиды продавливания.
кПа – расчетное сопротивление бетона на растяжение.
м2
м2
где
м
кН
кн.
- условие выполняется.
5. Армирование конструкций фундамента (расчёт на изгиб)
При определении усилий в конструкции фундамента (подошвы фундамента) в заданном сечении, за расчетную схему принимается консольная балка с жесткой заделкой в заданном сечении - оставшейся части фундамента, на которую действует нагрузка.
Подбор рабочей арматуры производим по двум сторонам:
Сечение 1-1
кПа
кНм
см2
Площадь сечения одного стержня:
см2
Из сортамента выбираем арматуру диаметром 12 мм с As1 = 1,313 см2 , тогда As = 5х1,313 = 6,565 см2 .
Сечение 2-2
кПа
кНм
см2
Площадь сечения одного стержня:
см2
Из сортамента выбираем арматуру диаметром 9 мм с As1 = 0,636 см2 , тогда As = 5х0,636 = 3,18 см2
Сечение 3-3
кПа
кНм
см2
Площадь сечения одного стержня:
см2
Из сортамента выбираем арматуру Вр-1 диаметром 4 мм с As1 = 0,126 см2 , тогда As = 5х0,126 = 0,63 см2
Принимаем сетку С1 из арматуру А-400 диаметром 12 мм. По стороне l и b ее количество составит
шт.
6. Расчет осадки методом послойного суммирования
1. Среднее давление подошвы фундамента Рср = 587,3 кПа
2. Природное давление грунта на уровне подошвы фундамента.
кПа
