Основные технологические процессы на разрезе Томусинский
Драглайн может разрабатывать породы торцовым и тупиковым забоями (рис. 5.11). При этом он может располагаться на кровле уступа, промежуточной площадке и почве уступа.
В случае расположения драглайна на кровле уступа горная масса разгружается в отвал или в транспортные средства. Забой драглайна имеет криволинейный профиль, соответствующий траектории движения ковша. Возможная высота забоя определяется паспортной глубиной черпания, углом откоса забоя и местом установки драглайна. Максимальная ширина (м) заходки
Аmax=Rч(sinω1+sinω2), (5.5)
где ω1 = 30/45, ω2=30/45 - угол поворота драглайна от оси его хода соответственно в сторону массива и выработанного пространства (рис. 5.12), градусы.
Рисунок 5.11 - Схемы работы драглайна:
а, 6, в - торцовым забоем с расположением драглайна соответственно на кровле уступа, промежуточной площадке и почве уступа; г - тупиковым забоем с расположением драглайна на кровле уступа.
Обычно при работе в отвал ω1=0. Тогда общий угол поворота драглайна при черпании ω =ω2 =30/45°. Угол поворота драглайна для разгрузки не превышает 90°. Тогда ширина (м) заходки
А = Rчsin ω (5.6)
Для драглайнов ЭШ-4/45, ЭШ-8/60, ЭШ-15/90, ЭШ-90/100 ширина заходки равна соответственно 23, 29, 42, 47 м. Схема с расположением драглайна на промежуточной площадке применяется при использовании мощных драглайнов с ковшом вместимостью 8-10 м и более с целью одновременной отработки более высокою уступа, так как ось хода драглайна смещается ближе к отвалу. Угол откоса забоя при разработке верхнего подуступа для предотвращения скольжения ковша не должен превышать 25°. Высота верхнего подуступа должна удовлетворять условию hу.в≤(0.7/0.8)Нр Производительность драглайна при верхнем черпании, как правило, на 10-15% ниже, чем при нижнем черпании.
Рисунок 5.12 - Схема к определению ширины заходки драглайна
На почве разрабатываемого уступа драглайн располагают редко (в основном при разработке неустойчивых пород). Драглайны составляют около 15% парка одноковшовых экскаваторов в стране. Ими выполняется около 15% объемов горных и земляных работ. На карьерах они в основном применяются для перевалки породы в выработанное пространство.
5.2.3 Технологические параметры гидравлических экскаваторов
В последние годы наметилась тенденция широкого внедрения в практику открытых горных работ нового типа выемочно-погрузочных машин - гидравлических экскаваторов с рабочим оборудованием прямой и обратной мехлопаты (наибольшую долю будут составлять гидравлические экскаваторы с гидроприводом рабочего оборудования, поворотной платформы, механизма хода). В отечественной и зарубежной практики уже созданы гидравлические экскаваторы с ковшом вместимостью 2,5-20 м3 , массой 60-500 т, усилием копания 200-125 кН. Тенденция широкого внедрения гидравлических экскаваторов в практику открытых горных работ объясняется наличием у этих экскаваторов конструктивных и технологических преимуществ по сравнению с мехлопатами. основными из них являются:
1) дополнительная степень свободы рабочего оборудования (одновременная подвижность стрелы, рукоятки и ковша), обеспечивающая получение регулируемой траектории черпания и слоевую (сверху вниз) разработку пород;
2) в 1,5-2,5 раза меньше удельная (на 1м3 вместимость ковша) металлоемкость конструкции;
3) большое (реализуемое на зубьях ковша) усилие копания;
4) быстрый монтаж (демонтаж) рабочего оборудования, позволяющий использовать на одной машине различные его конструкции, что обеспечивает в заданный момент соответствие технологических параметров экскаватора условиям разработки.
Обратные гидравлические мехлопаты по сравнению с прямыми мехлопатами имеют следующие преимущества:
1) большой радиус черпания на уровне стояния экскаватора;
2) возможность верхнего и нижнего черпания и погрузки транспортных средств на уровне стояния экскаватора, ниже и выше, него;
3) лучшую возможность селективной выемки пород при установке экскаватора на кровле разрабатываемого уступа и возможность выемки из под слоя воды. Первый отечественный карьерный гидравлический экскаватор ЭГ-12 конструкции Уралмашзавода прошел промышленные испытания в 1979 г. на угольном разрезе "Кедровский" (в Кузбассе). В стадии разработки находятся усовершенствованная модель этого экскаватора ЭШ-I2A с челюстным ковшом и более мощная модель ЭГ-20 с ковшом вместимостью 20 м3 .На угольном разрезе в Якутии работают экскаваторы 204-М фирмы "Марион" с конструктивной системой "Суперфронт". Широкие технологические возможности и конструктивные достоинства мехлопат с гидроприводом говорят о настоятельной необходимости серийного производства таких машин для открытых горных работ.
5.2.4Технологические параметры многоковшовых экскаваторов
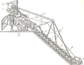
Многоковшовые экскаваторы по конструкции рабочего органа делятся на цепные и роторные. У цепных многоковшовых экскаваторов (рис. 5.13) рабочим органом является ковшовая цепь, которая движется по направляющей раме. Рама одним концом шарнирно соединена с корпусом, а другой ее конец подвешен к укосине. Угол наклона рамы меняется с помощью канатной подвески. При движении по забою ковши наполняются и перемещают породу к верхнему барабану, где они разгружаются в бункер. Из бункера порода поступает в вагоны или на разгрузочный конвейер. Вместимость ковша 250-4500л.
Рисунок 5.13 - Схема цепного многоковшового экскаватора:
1 - направляющая рама; 2 -ковшовая цепь; 3 - верхний барабан;4-планирующее звено; 5 - подвижной противовес; 6 - канат для подвески стрелы; 7- тяги для подвески рамы к стреле; 8- канат для управления планирующим звеном; 9-стрела; 10-загрузочные люки; 11-порталы под экскаватором; 12-кран-укосина для ремонта экскаватора.
Цепные многоковшовые экскаваторы выпускаются на железнодорожном,
гусеничном и пневмоколесном ходу. Пневмоколесным ходом снабжаются только малые модели. Рельсовые пути для передвижения многоковшовых экскаваторов укладываются совместно с путями для подвижного состава на общих шпалах. При холостом ходе экскаваторы способны преодолевать уклон до 5°/00, а при рабочем - 2,5—3°/00. Мощные цепные экскаваторы выпускаются с электрическим приводом. Небольшие модели снабжаются дизельным и дизель-электрическим приводом. Различают цепные экскаваторы с одной ковшовой цепью для верхнего или нижнего черпания, а также для последовательного верхнего и нижнего черпания. При верхнем черпании уменьшается расход энергии на подъем и резание породы. Экскаваторы нижнего черпания рационально использовать при разработке плотных глинистых пород.
Экскаваторы могут быть неповоротными, неполно- и полноповоротными. У полноповоротных экскаваторов верхняя часть с направляющей рамой может поворачиваться на 360°, что обеспечивает возможность попеременной разработки уступа верхним черпанием с одной рабочей площадки. По способу разгрузки различают экскаваторы с портальной и боковой разгрузкой. Портальная разгрузка применяется при погрузке в средства железнодорожного транспорта.
