Газоанализаторы
Подача раствора может быть как непрерывной, так и периодической. При периодической подаче анализируемый газ пропускают в течение некоторого времени через одну и ту же порцию раствора, что позволяет повысить чувствительность определения. Такие газоанализаторы дают возможность измерить среднюю концентрацию определяемого компонента за заданный промежуток времени, например при установлении среднесменных или среднесуточных концентраций токсичных примесей в воздухе.
В ленточных газоанализаторах (рис.11) анализируемый газ поступает в газовую камеру, через которую непрерывно или с заданной периодичностью протягивается лента с нанесенным на нее реактивом. В результате реакции с определяемым компонентом на ленте образуется цветовое пятно, интенсивность окраски которого пропорциональна концентрации компонента. Разность (или отношение) световых потоков, отраженных от окрашены и неокрашенных участков ленты, - мера концентрации контролируемого компонента в смеси. Иногда используют индикаторную ленту с жидким реактивом. В этом случае реактив наносится на ленту из капельницы непосредственно перед ее контактом с газом.
Рис.11. Ленточный фотоколориметрический газоанализатор: 1 - источник излучения; 2-индикаторная лента; 3-светофильтр; 4 и 4'-приемники излучения; 5-газовая камера; 6-усилитель; 7-вторичный прибор.
Принцип действия таблеточных и порошковых газоанализаторов такой же, как у ленточных, но эти приборы, как правило, циклического действия. Для получения чистой поверхности перед каждым циклом измерения срезается верх, окрашенный слой таблетки или заменяется порция порошка.
Время работы ленточных и таблеточных газоанализаторов без замены ленты или таблетки достигает 30 суток и более. Источники излучения в фотоколориметрических газоанализаторов - обычно лампы накаливания и полупроводниковые светодиоды, фотоприемники - фотоумножители, фотоэлементы, фотодиоды и фототранзисторы. Эти приборы позволяют с высокой избирательностью определять различные газообразные (парообразные) вещества в диапазоне концентраций 10-5-1%. Особенно высока чувствительность у газоанализаторах периодического действия; их недостаток - некое запаздывание показаний.
Фотоколориметрические газоанализаторы применяют главным образом для измерения концентраций токсичных примесей (например, оксидов азота, О2, С12, CS2, O3, H2S, NH3, HF, фосгена, ряда органических соединений) в атмосфере промышленных зон и в воздухе промышленных помещений. При контроле загрязнений воздуха широко используют переносные приборы периодического действия. Значит, число фотоколориметрического газоанализатора применяют в качестве газосигнализаторов.
Электрохимические газоанализаторы. Их действие основано на зависимости между параметром электрохимической системы и составом анализируемой смеси, поступающей в эту систему.
В кондуктометрических газоанализаторов измеряется электропроводность раствора при селективном поглощении им определяемого компонента. Обычно схема прибора включает электрический мост постоянного или переменного тока с двумя кондуктометрическими ячейками, через которые протекает электролит. В одну из ячеек электролит поступает после контакта с потоком анализируемого газа. Выходной сигнал пропорционален разности электропроводностей раствора до и после контакта с контролируемой смесью. Эта разность зависит от концентрации растворенного в электролите определяемого компонента. Изменяя расходы электролита и анализируемой смеси, можно в широких пределах изменять диапазон определяемых концентрации. Недостатки этих газоанализаторов - низкая избирательность и длительность установления показаний при измерении малых концентраций. Кондуктометрические газоанализаторы широко применяют для определения О2, СО, SO2, H2S, NH3 и других.
Действие потенциометрических газоанализаторов основано на зависимости потенциала Е индикаторного электрода от активности а электрохимических активных ионов, образовавшихся при растворении определяемого компонента:
где E° - стандартный электродный потенциал, R - универсальная газовая постоянная, Т - абсолютная температура, F - число Фарадея, n-число электронов, участвующих в электрохимической реакции. Измеряемое значение Е пропорционально концентрации контролируемого компонента, растворенного в электролите. Эти газоанализаторы применяют для определения СО2, H2S, HF, NH3, SO2 и др.
Большое распространение получили потенциометрические газоанализаторы с твердым электролитом для измерения содержания О2. Керамическая пластина на основе СаО и ZrO2 при высокой температуре начинает проводить ионы кислорода, т.е. ведет себя как электролит. На поверхность такой пластины с обеих сторон наносят тонкие слои пористой платины (платиновые электроды). С одной стороны пластины подают анализируемую газовую смесь, с другой - сравнительный газ. Разность потенциалов между электродами - мера содержания О2. Термостат поддерживает температуру электрохимической ячейки в нужном диапазоне. С помощью таких газоанализаторов определяют О2 в широком диапазоне концентраций (10-4-100% по объему). Присутствие углеводородов в анализируемой смеси приводит к искажению результатов из-за их окисления при высокой температуре.
Действие амперометрических газоанализаторов основано на зависимости между электрическим током и количеством определяемого компонента, прореагировавшим на индикаторном электроде. Если контролируемый компонент полностью вступает в электрохимическую реакцию, то выполняется закон Фарадея: I = = nFQC, где I-ток, Q - расход газа, С-концентрация определяемого компонента, F-число Фарадея, n-число электронов, участвующих в реакции.
Электрохимическое превращение данного компонента газовой смеси со 100% -ным выходом по току (т.е. отсутствие побочных электродных реакций) обеспечивается выбором индикаторного электрода и его потенциала. Необходимое постоянное значение разности потенциалов поддерживается благодаря тому, что сравнительно и индикаторный электроды выполняют из двух разных специально подобранных металлов, например из Аи и Zn, Au и Pb, Ni и Cd (ячейки гальванического типа). Разность потенциалов можно стабилизировать и посредством электронной системы с использованием третьего вспомогательного электрода (ячейки потенциостатического типа).
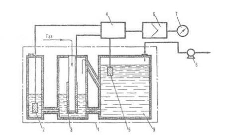
Рис.12. Амперометрический газоанализатор: 1-электрохим. ячейка; 2-вспомогат. электрод; 3-измерит, электрод; 4-потенциостат; 5 - электрод сравнения; 6-усилитель; 7-вторичный прибор; 8-побудитель расхода газа; 9-камера с запасным электролитом.
Амперометрические газоанализаторы применяют для определения газов, обладающих окислительно - восстановительными свойствами, например SO2, NO2, H2S, О2, С12, О3. В газоанализаторы для измерения содержания SO2 в воздухе (рис.12) анализируемый газ поступает на измерительный электрод 3 электрохимические ячейки и по газовому каналу - в камеру с запасным электролитом 9, в который помещен электрод сравнения 5. Вспомогательный электрод 2 расположен в отдельной камере, которая, как и камера 9, соединена с камерой измерительного электрода электролитическим каналом. Достоинства амперометрического газоанализатора - высокая чувствительность и избирательность.
