Архитектурные конструкции многоэтажных зданийРефераты >> Строительство >> Архитектурные конструкции многоэтажных зданий
Витраж (витрина) с алюминевыми глухими переплетами
1 – слив;2 – рама переплета наружного остекления; 3 – штапик; 4 – уплотняющая прокладка;5 – стекло; 6 – стальна пружина; 7 рама переплета внутреннего остекления; 8 – нащельник; 9 – покрытие мастикой; 10 – эластичная прокладка; 11 – смоляная пакля.
В витражах высотой более 6 м вертикальные элементы каркаса, которые воспринимают большие ветровые, нагрузки, выполняют в виде рам и ферм. При двойном раздельном остеклении рамы и фермы образуют путем соединения вертикальных элементов каркасов решеткой из раскосов и ригелей либо только ригелями.
Вертикальные импосты витражей более 6 м.
А – для остекления с одинарным переплетом; б – для остеклении с двойным раздельным переплетом;1 – переплет(каркас); 2 – стекло (стеклопакет); 3 –ригель.
Витражи и витрины с двойным раздельным остеклением подразделяют на проходные и непроходные. Проходные конструкции — глухие. Чтобы обеспечить проход человека в межстекольное пространство для протирки стекол, его ширина принимается не менее 450 мм. При высоте витражей более 3м это расстояние увеличивают до 800 мм. В витринах оно может быть еще больше, что определяется функциональными требованиями. Для входа в межстекольное пространство предусматривают створку шириной не менее 0,6 м из тамбура или из помещения. При протяженных витражах створки устанавливают через каждые 15м. В непроходных витражах (витрина),одно из светопрозрачных ограждений проектируют глухим другое — целиком створное для возможности очистки внутренних поверхностей стекла. Расстояние между наружным и внутренним ограждением принимают не более 150 мм.
Конструктивные схемы витражей и витрин
А- переходные на плане по 1- 1 справа – с частично створными внутренними переплетами ,слева- со всеми створными внутренними переплетами ;б,в – проходные.
При креплении каркаса витражей и витрин к остову здания учитывают кроме ветровых нагрузок температурные деформации конструкций, здания, прогибы, колебания козырьков и др., поэтому узлы креплении осуществляются скользящими или гибкими. Крепления устраивают в местах положения стоек, причем в самонесущих («стоящих») светопрозрачных конструкциях скользящие связи вверху, а и в навесах (висячих) конструкциях— внизу. Противоположные гибким связям стороны стоек каркаса крепят при помощи обычной жесткой заделки. В многоэтажных витражах стойки каркаса поэтажно крепят посредством сварки к закладным деталям перекрытий. Для погашении температурных и других деформаций в пределах каждого этажа стойки каркаса членят и их концы соединяют скользящим швом.
При возведении витражей и витрин плоскости светопрозрачного ограждения выравнивают, иначе будут искажены отражения противоположных зданий и пейзажей.
Приемы монтажа конструкций витражей и витрин(а) и их крепление к несущим конструкциям здания(б)
1 – вертикальна стойка каркаса; 2 – анкерный вкладыш;3 – стена; 4 – закладная деталь; 5 – прокладки; 6 – анкер; 7 – ригель.
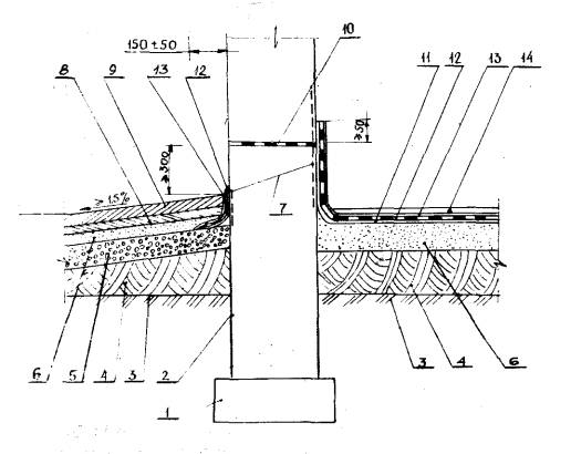
Конструктивные решения перехода остова и наружного ограждения от подземной части здания к надземной с цокольной частью и отмосткой. Фундаменты зданий, расположенные на относительна сухих грунтах, т. е, с глубоким уровнем расположения грунтовых вод, в первую очередь защищают от прямого воздействия дождевых и талых вод. С этой целью по периметру наружных стен устраивают отмостку из асфальта, асфальтобетона или плоских камней на слое песка и с подстилкой жирной глины .
В любых грунтах содержится капиллярная влага, которая проникает в тело фундамента и поднимается к зоне сопряжения с конструктивными элементами надземной части здания Чтобы преградить доступ капиллярной влаги в помещения, на границе контакта фундамента со стенами устраивают гидроизоляцю Ее выполняют из двух слоев толя или раствора цемента с водонепроницаемыми добавками, а располагают на определенном уровне от поверхности отмостки и пола. Полы первого этажа, расположеннные на грунте, тоже имеют горизонтальную гидроизоляцию. При этом боковую поверхность фундамента или стены, соприкасающуюся с грунтом пола, обмазывают горячим битумом от уровня гидроизоляции стыка стен с фундаментом до верха подготовки пола,
При высоком уровне грунтовых вод (УГВ) конструктивные элементы .подземной части здания оказываются и воде. Если вода агрессивна по отношению к материалам фундамента или подвала, то эти элементы выполняют из специальных материалов, устойчивых к агрессивному действию воды.
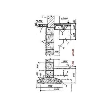
узел примыкания наружных стен дома из керамического блока к фундаменту, устройство пола по грунту, "скрытой" отмостки.
Рис. II.6. Стена подвала многоэтажного здания
1 - стеновые блоки; 2 -отмостка: 3 -стена здания; 4 - плиты перекрытия; 5 - ригель надподвального перекрытия; 6 - колонна каркаса; 7 - фундамент колонны: S - ленточный фунда-мепт стены
1 - подошва фундамента, 2 - стена фундамента, 3 - естественный грунт, 4 - уплотненный грунт, 5 - гравий слоем ≈ 200 мм, 6 - песок слоем ≈ 120 мм, 7 - зона очистки стены, 8 - первый слой ≈ 60 мм асфальтобетона, 9 - второй слой ≈ 60 мм асфальтобетона, 10 - горизонтальная гидроизоляция из самоклеящейся, 11 - полиэтиленовая пленка толщиной ≈ 300 мкм, 12 - армогерметик, 13 - мастика, 14 - половое покрытие полимерраствор.
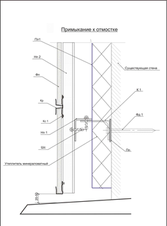
узел примыкания наружных стен дома с навесными вент.фасадами к отмостке.
6. Конструктивные решения крыш
Крыша - наружная несущая и ограждающая конструкция здания, которая воспринимает вертикальные (в том числе снеговые) и горизонтальные нагрузки и воздействия. (ветер - нагрузка) Крыша состоит из двух основных частей: несущих конструкций и кровли. Несущие элементы крыши — стропила, настилы, фермы и другие конструктивные устройства— воспринимают и передают на стены нагрузки от массы крыши, снега, воздействия ветра и др.
По архитектурно-конструктивным решениям, крыши классифицируют на совмещенные и чердачные.
Совмещенными крышами называют пологие бесчердачные покрытия, в которых крыша совмещена с конструкцией чердачного перекрытия и нижняя поверхность является потолком помещения. Чаще всего совмещенные покрытия выполняют из железобетонных элементов. Совмещенные крыши рекомендуется устраивать пологими, с уклоном 2,5% в виде гидроизоляционного ковра, выполненного из рубероида в три слоя. Водоотвод с совмещенных крыш производят по внутренним водостокам.
Различают вентилируемые совмещенные крыши, в которых между кровлей и утеплителем вводится вентилируемая воздушная прослойка, и невентилируемые, сплошной конструкции. Устройство воздушной прослойки, вентилируемой наружным воздухом, содействует удалению влаги из утеплителя в случае его укладки в увлажненном состоянии или увлажнения в период эксплуатации, улучшая, таким образом, его теплозащитные свойства. Принципиальная конструктивная схема совмещенных крыш приведена на рисунке .
