Проектирование и расчет несущих конструкций железобетонного каркаса одноэтажного промышленного зданияРефераты >> Строительство >> Проектирование и расчет несущих конструкций железобетонного каркаса одноэтажного промышленного здания
Исходные данные
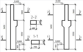
1. Длина блока 60(м),
2. Ширина блока 36(м),
3. Шаг колонн 6(м),
4. Пролет (L1, L2) 18(м),
5. Количество пролетов 2
6. Высота до низа несущих конструкций 8.4(м),
7. Грузоподъемность крана 20 (т),
8. Район строительства г. Киев,
9. Типовые конструкции
- колонны, крановые сплошного прямоугольного сечения (колонна для расчета крайняя);
- отдельно стоящие фундаменты стаканного типа;
- конструкции покрытия – КЖС.
Состав проекта
I. Состав пояснительной записки:
1. Компоновочная и расчетная схема каркаса здания, сбор по загружениям.
2. Определение усилий в крайней колонне от загружений.
3. Комбинация усилий в сечениях крайней колонны.
4. Расчет и конструирование колонны.
5. Расчет и конструирование отдельно стоящего фундамента.
6. Расчет и конструирование плиты.
II. Графическая часть проекта.
Проект оформляется на 1.5-2 листах формата А1 в составе:
- компоновочная схема здания;
- армирование колонны;
- армирование отдельно стоящего фундамента;
- армирование конструкций покрытия.
Введение
Целью данного курсового проекта является расчет железобетонных элементов сборного каркасного одноэтажного промышленного здания. Здание имеет следующие объемно планировочные характеристики: два пролета по 18 м (общая ширина здания 36 м), длина – 60м. В здании применены железобетонные колонны заводского изготовления. Колонны имеют сплошное прямоугольное поперечное сечение. Шаг колонн в здании – 6м. На колонны опирается подкрановые балки длиной 6 м. В каждом пролете действует кран, грузоподъемностью Q=20 т. Все краны среднего режима работы. Колонны опираются на фундаменты стаканного типа. Нагрузка от покрытия на колонны посредством КЖС пролетом 18 м, уложенных с шагом 6 м. В качестве наружных ограждающих конструкций применяются железобетонные панели размером 1,2х6 м. Для расчета элементов каркаса колонн, КЖС – все размеры принимаются в соответствии с каталогом железобетонных конструкций для одноэтажных промышленных зданий. В пояснительной записке приводится лишь расчет и подбор арматуры. Фундамент рассчитывается с учетом требований унификации.
Здание рассчитывается для строительства в районе города Киев.
1. Подбор конструкций
Колонны
Подкрановая балка – 3,5т
Стеновая панель – 2,1т
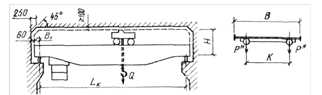
Характеристики крана:
Грузоподъемность Q=20т; Пролет Lк-16.5 м;
Ширина В=6300мм; База К=4400мм;
Высота Н=2400мм; Зазор В1=260мм;
Давление колеса Рn, max=195кН;
Масса тележки Gт=8.5 т;
Масса крана с тележкой Gк=28,5т.
2. Компоновка поперечной рамы здания
Fгр – грузовая площадь поперечника.
3. Cбор нагрузок
Постоянная нагрузка
Нагрузки от покрытия собираем с грузовых площадей равных: 9x6 м для колонн по рядам А и В, и 18х6 для колонн по ряду Б.
Нагрузки от массы подкрановых балок, крановых путей, стеновых панелей, от ветра собираем с полосы 6м, равной по ширине раме-блоку.
|
Элементы конструкции |
Нормативная нагрузка кН/м2 |
Коэф. Надежности γf |
Расчетная нагрузка кН/м2 |
|
Защитный слой из гравия на мастике, δ=20мм |
0,4 |
1,3 |
0,52 |
|
Водоизоляционный ковер (три слоя рубероида на мастике) |
0,15 |
1,3 |
0,18 |
|
Цементно-песчаная стяжка δ=20мм |
0,4 |
1,3 |
0,52 |
|
Минераловатный плитный утеплитель (γ=3,7 кН/м3; δ=100мм) |
0,37 |
1,3 |
0,48 |
|
Пароизоляция – два слоя пергамина на мастике |
0,1 |
1,3 |
0,12 |
|
КЖС |
1,82 |
1,1 |
2.00 |
|
Итого |
3,24 |
- |
3.82 |
Снеговая нагрузка
Расчетная снеговая нагрузка по (СНиП 2.01.07-85* "Нагрузки и воздействия" таб.4)
для г. Киев.
где γf – коэффициент надежности по нагрузке 1,8;
Определим продольную силу Ns в крайней
колонне:
;
Момент
, возникающий от действия снеговой
нагрузки равен
где
Ветровая нагрузка
В зависимости от района (по СНиП 2.01.07-85* прил.5 карта 3 и табл.5) выбираем район и нормативное значение ветрового давления w0 Киев – II район – w0=0.3 (кПа),
Аэродинамические коэффициенты для вертикальных стен:
- с наветренной стороны;
- c заветренной стороны;
