Проектирование и расчет несущих конструкций железобетонного каркаса одноэтажного промышленного зданияРефераты >> Строительство >> Проектирование и расчет несущих конструкций железобетонного каркаса одноэтажного промышленного здания
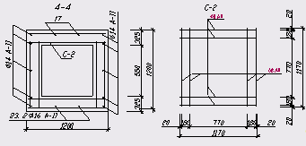
Принимаем по 5Ø14 А-III (Аs= А’s=769мм2) у граней подколонника, перпендикулярных плоскости изгиба. У смежных граней параллельных плоскости изгиба, с шагом не более 400 мм, т.е. по 3Ø14 A-III (Аs= 462 мм2).
Подбор поперечной арматуры подколонника.
При выполнении условия
,
- поперечная арматура подколонника ставится конструктивно. Примем поперечную арматуру подколонника в виде горизонтальных сеток С-2 из стержней Ø 8 A-III с шагом 150 мм. Количество сеток 8 шт.
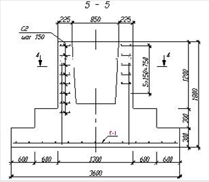
Расчет на смятие для стакана.
Расчет выполняется из условия
, где
- так как нагрузка почти равномерно распределенная;
- площадь смятия;
- расчетная площадь смятия;
Расчетное сопротивление смятию бетона:
, где
для бетона класса ниже В25.
Значит смятие бетона под колонной на дне стакана не произойдет, следовательно сетка под днищем стакана не требуется.
6. Конструирование и расчет КЖС-18
Бетон класса B30 с характеристиками Rb=17 МПа, Rbt=1.2 МПа, арматура класса А-IV, Rs=510 МПа, Rsc=400 МПа, Es=1.9x105 МПа, Eв=260x103 МПа.
Сбор нагрузок
|
Элементы конструкции |
Нормативная нагрузка кН/м2 |
Коэф. Надежности γf |
Расчетная нагрузка кН/м2 |
|
Защитный слой из гравия на мастике, δ=20мм |
0,4 |
1,3 |
0,52 |
|
Водоизоляционный ковер (три слоя рубероида на мастике) |
0,15 |
1,3 |
0,18 |
|
Цементно-песчаная стяжка δ=20мм |
0,4 |
1,3 |
0,52 |
|
Минераловатный плитный утеплитель (γ=3,7 кН/м3; δ=100мм) |
0,37 |
1,3 |
0,48 |
|
Пароизоляция – два слоя пергамина на мастике |
0,1 |
1,3 |
0,12 |
|
КЖС |
1,82 |
1,1 |
2.00 |
|
Итого |
3,24 |
- |
3.82 |
|
Снеговая |
1 |
1.8 |
1.8 |
|
ВСЕГО |
4.24 |
5.62 |
Размеры поперечного сечения панели-оболочки принимаем согласно рекомендациям: толщину оболочки 30 мм, толщину стены диафрагмы 40-50 мми нижнего утолщения 100х100 мм, высоту опорной части панели 150 мм.
С учетом коэффициента надежности принимаем нагрузку:
- нормативная (при γf=1) – 4.24 кН/м2;
- расчетная (при γf>1) – 5.62 кН/м2;
Расчетный изгибающий момент в середине пролета панели:
Расчетная поперечная сила:
Расчетные усилия от нормативных нагрузок:
Расчет толщины оболочки
Проверяем толщину оболочки в середине пролета:
- коэффициент условий работ тонкой оболочки – 0.75
Принимаем 3 см
Расчет арматуры в торце плиты
Определяем расчетное усилие Nt в торцевой арматуре:
Принимаем большее из двух значений.
g – расчетная нагрузка от веса панели на 1 м2; bs – расстояние между осями рабочей арматуры диафрагм; 2000 – сопротивление отрыву при съема панели с формы.
Принимаем Nt=76 кН
Площадь сечения торцевой арматуры As,t класса A-III c Rs=360 МПа (при d>10 мм):
Принимаем 2Ø12 A-III; As=2.26 см2.
Расчет диафрагм на действие поперечной силы.
Значение Q=150 кН. С учетом влияния изгибающего момента рассмотрим сечение, расположенное на расстоянии 1 м от оси опоры. В этом сечении ho=26.7 см; z0=24.4 см; tgφ=0.19; толщина диафрагм b’=10 см; Rbt=1.2 МПа.
Усилие в сечении:
Определяем часть поперечной силы, воспринимаемой диафрагмами:
,
где φ – угол наклона оси оболочки; при этом должно соблюдаться условие:
Условие
Условие соблюдается.
Следовательно, поперечная арматура по расчету не требуется, устанавливаем ее по конструктивным соображениям: Ø6 A-III с шагом 150 мм.
