Проектирование и расчет несущих конструкций железобетонного каркаса одноэтажного промышленного зданияРефераты >> Строительство >> Проектирование и расчет несущих конструкций железобетонного каркаса одноэтажного промышленного здания
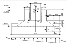
Предварительные размеры подошвы фундамента.
Назначая отношение сторон
5 и предварительно установим размер меньшей стороны как для центрально нагруженного фундамента:
;
Примем
, тогда
;
Учитывая наличие момента и распора, увеличиваем размеры сторон примерно на 10-15%;
Принимаем
(кратно 300).
Площадь подошвы
;
Момент сопротивления подошвы в плоскости изгиба
;
Определение конфигурации фундамента.
Размеры подколонника в плане:
,
где
и
- толщина стенок стакана и зазор между гранью колонны и стеной стакана в направлении сторон l и b.
Рабочая высота плитной части из условия продавливания от граней подоконника.
Принимая bc=bcf=1.2м и hc=hcf=1.2м
Так как консольный вынос ступени получается больше оптимального, равного 3h01:
0,5(l-lcf)=0.5(3.6-1.2)=1.2>3h01=3x0.25=0.75(м), где h01=h1-a=300-50=250мм=0,25м,
поэтому принимаем плитную часть из двух ступеней высотой h1=h2=300мм. Размеры в плане второй ступени b1xl1=1.8x2.4м. Консольные выносы ступеней:
;
;
;
Глубина стакана под колонну hd=900мм
Проверка высоты нижней ступени.
Проверка на продавливание выполняется из условия:
, где Р=РmaxAf0 – продольная сила; bm=b1+h01=1.8+0.25=2.05 – размер средней линии грани пирамиды продавливания. При b-b1=3,0-1.8=1,2м>2h01=2x0.25=0.5м.
Площадь
=0,928(м2);
- продавливание нижней ступени не произойдет.
Проверка по поперечной силе для наклонного сечения, начинающаяся от грани второй ступени.
- перерезывающая сила. Минимальное поперечное усилие, воспринимаемое одним бетоном:
;
прочность нижней ступени по поперечной силе достаточны.
Проверку второй ступени на продавливание можно не производить, так как принятая высота плитной части значительно превышает требуемую из расчета на продавливание.
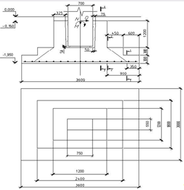
Подбор арматуры подошвы.
Площадь сечения рабочей арматуры подошвы:
, Мi-i и h01 – момент и рабочая высота в i-том сечении. Подбор арматуры в направлении длинной стороны подошвы.
Сечение I-I (h01=250мм):
;
Сечение II-II (h02=550мм):
;
Сечение III-III (h03=1750мм):
;
.
Приму 15 Ø 18 А-III (Аs=3810мм2>As,II=3542мм2) в направлении длинной стороны с шагом 200 мм.
Подбор арматуры в направлении короткой стороны.
Расчет ведется по среднему давлению по подошве
.
Рабочая высота
Сечение I’-I’ по грани второй ступени
;
Сечение II’-II’ по грани подколонника
;
Сечение III’-III’ по грани колонны
;
.
Принимаю вдоль короткой стороны фундамента 18 Ø 14 А-III (Аs=2770мм2>As,II=2245мм2) с шагом 200 мм.
Расчет продольной арматуры подколонника.
Расчет продольной арматуры подколонника. Толщину защитного слоя бетона принимаем не менее 50 мм, берем расстояние от наружной грани стакана до центра тяжести сечения арматуры a=a’=50мм.
Расчетный эксцентриситет продольной силы относительно арматуры As.
;
- момент на уровне низа подколонника.
Расчетный эксцентриситет относительно арматуры подколонника:
Требуемая площадь сечения симметричной арматуры:
;
;
;
то есть по расчету продольная арматура не требуется, но по конструктивным требованиям при As<0 ее количество должно быть не менее 0.05% площади поперечного сечения подколонника.
