Стальной каркас одноэтажного производственного зданияРефераты >> Строительство >> Стальной каркас одноэтажного производственного здания
СОДЕРЖАНИЕ
ИСХОДНЫЕ ДАННЫЕ ДЛЯ ПРОЕКТИРОВАНИЯ
1 КОМПОНОВКА КОНСТРУКТИВНОЙ СХЕМЫ КАРКАСА
2 СТАТИЧЕСКИЙ РАСЧЕТ ОДНОЭТАЖНОЙ ОДНОПРОЛЕТНОЙ РАМЫ
2.1 Компоновка однопролетной рамы
2.1.1 Определение вертикальных размеров рамы
2.1.2 Определение горизонтальных размеров рамы
2.2 Определение нагрузок действующих на раму
2.2.1 Постоянные нагрузки от покрытия
2.2.2 Снеговая нагрузка
2.2.3 Нагрузки от мостовых кранов
2.2.4 Ветровая нагрузка
2.3 Статический расчет рамы с жесткими узлами
2.3.1 Расчетная схема рамы
2.3.2 Учет пространственной работы каркаса
2.3.3 Определение усилий в сечениях рамы
3 РАСЧЕТ И КОНСТРУИРОВАНИЕ СТАЛЬНОЙ СТРОПИЛЬНОЙ ФЕРМЫ
3.1 Схема стропильной фермы
3.2 Определение нагрузок действующих на ферму
3.2.1 Постоянные нагрузки
3.2.2 Снеговая нагрузка
3.2.3 Определение опорных моментов
3.3 Определение расчетных усилий в стержнях фермы
3.4 Подбор сечения стержней фермы
3.5 Расчет и конструирование узлов фермы
3.5.1 Прикрепление раскосов и стоек к узловым фасонкам
3.5.2 Расчет и конструирование опорных узлов
3.5.3 Расчет и конструирование узлов укрупнительного стыка
4 Расчет и конструирование ступенчатой колонны
4.1 Исходные данные для расчета ступенчатой колонны
4.2 Определение расчетных длин колонны
4.3 Подбор сечения верхней части колонны
4.3.1 Выбор типа сечения верхней части колонны
4.3.2 Проверка устойчивости верхней части колонны
4.4 Подбор сечения нижней части колонны
4.4.1 Выбор типа сечения нижней части колонны
4.4.2 Проверка устойчивости нижней части колонны
4.4.3 Расчет решетки подкрановой части колонны
4.4.4 Проверка устойчивости колонны в плоскости действия момента как единого стержня
4.5 Расчет и конструирование узла сопряжения верхней и нижней частей колонны
4.6 Расчет и конструирование базы колонны
4.6.1 Определение расчетных усилий
4.6.2 База наружной ветви
4.6.3 База подкрановой ветви
Список использованных источников
ИСХОДНЫЕ ДАННЫЕ ДЛЯ ПРОЕКТИРОВАНИЯ
Номер зачетной книжки – 06076.
Шифр № 276.
Сумма первых двух цифр шифра – 9, вторая цифра шифра – 7, третья – 6.
По сумме первых двух, а также по второй и третьей цифрам шифра находим:
- пролет производственного здания L=24 м;
- грузоподъемность мостовых кранов Q – 160/32 т;
- режим работы мостовых кранов – Т (тяжелый);
- группа здания – 1;
- длина здания l=120 м;
- место строительства – г. Пенза;
- тип здания – неотапливаемое;
- уклон верхнего пояса ферм – 0;
- отметка головки рельса – H1=17 м;
- шаг ферм покрытия Вф=6 м;
- шаг рам каркаса В=12 м.
1 КОМПОНОВКА КОНСТРУКТИВНОЙ СХЕМЫ КАРКАСА
В соответствии с заданием шаг рам каркаса (колонн) В=12 м, шаг ферм покрытия Вф=6 м, пролет производственного здания L=24 м, длина здания l=120 м. Схема расположения колонн и стропильных конструкций представлена на рисунке 1.
Рисунок 1. Схема расположения колонн и стропильных конструкций
Связи между фермами, создавая общую пространственную жесткость каркаса, обеспечивают устойчивость сжатых элементов ферм, перераспределение местных нагрузок, приложенных к одной из рам, на соседние рамы, удобство монтажа, заданную геометрию каркаса, восприятие и передачу на колонны некоторых нагрузок.
Система связей покрытия состоит из горизонтальных расположенных в плоскостях нижнего (рисунок 2) и верхнего пояса ферм (рисунок 3) и вертикальных связей (рисунок 4). Горизонтальные связи состоят из продольных и поперечных.
Рисунок 2. Схема горизонтальных связей по нижним поясам ферм
Рисунок 3. Схема горизонтальных связей по верхним поясам ферм
Рисунок 4. Схема вертикальных связей между фермами
Система связей между колоннами (рисунок 5) обеспечивает во время эксплуатации и монтажа геометрическую неизменяемость каркаса, его несущую способность и жесткость в продольном направлении, а также устойчивость колонн из плоскости поперечных рам.
Рисунок 5. Схема вертикальных связей между колоннами
Монтажные крепление связей к конструкциям покрытия осуществляется на болтах (горизонтальные связи по верхним поясам ферм и все вертикальные связи) и на сварке (горизонтальные связи по нижним поясам ферм).
2 СТАТИЧЕСКИЙ РАСЧЕТ ОДНОЭТАЖНОЙ ОДНОПРОЛЕТНОЙ РАМЫ
2.1 Компоновка однопролетной рамы
2.1.1 Определение вертикальных размеров рамы
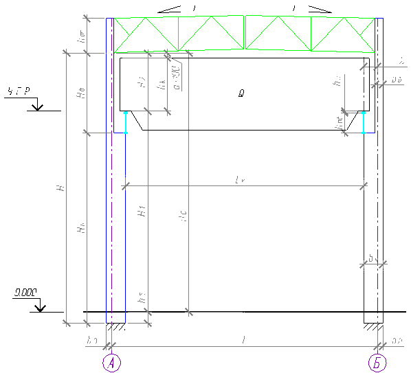
Рисунок 6. Схема к определению размеров в плоскости поперечника
Требуемое расстояние от верха оголовка рельса до низа фермы:
H2=hk+a+100,
где hk=4800 мм – высота крана 160/32 по ГОСТ 6711-81;
a=330 мм – учитывает прогиб фермы;
100 мм – зазор безопасности.
Н2=4800+330+100=5230 мм.
Отметка низа фермы:
H0=H1+H2,
где H1=17000 мм – отметка головки рельса (по исходным данным).
H0=17000+5230=22230 мм.
Так как Н0=22230>10,8, то в соответствии с "Основными положениями по унификации" размер Н0 принимаем кратным 1800 мм:
H0/1800=22230/1800=12.35 => принимаем отметку низа фермы H0=13*1800=23400, тогда отметка головки рельса:
H1=H0-H2=23400-5230=18170 мм.
Высота верхней части колонны:
HB=H2+hp+hп.б.,
где hp=170 мм, hп.б.=1800 мм – соответственно высота рельса и высота подкрановой балки для крана 160/32 по ГОСТ 6711-81;
HB=5230+170+1800=7200 мм.
Высота нижней части колонны:
HH=H0+hб–HB,
где hб=1000 мм – высота заглубления базы колонны.
HH=23400+1000-7200=17200 мм.
Общая высота стоек рамы:
H=HH+HB,
H=17200+7200=24400 мм.
Высота фермы у опоры hоп=3150 мм, так как уклон верхнего пояса i=0.
2.1.2 Определение горизонтальных размеров рамы
Ширина верхней части колонны: bв³HB/12=7200/12=600, примем bв=700 мм.
Привязка ферм к разбивочным осям согласно ГОСТ 23119-78 - 200 мм
Продольная привязка колонны: b0=bв-200=700-200=500 мм.
Ширина нижней части колонны:
bн=bо+l,
где l=1250 мм, так как Q=160 т.с;
bн=500+1250=1750 мм.
Для обеспечения жесткости цеха в плоскости рамы проверим условие:
bн³Hн/x,
где x=15 - для крана тяжелого режима работы.
bн=1750 мм > Hн/15=23400/15=1146.7 мм – условие выполняется.
Пролет крана:
Lк=L–2*l,
Lк=24000-2*1250=21500 мм.
