Башенные краны и другие машины, используемые в строительствеРефераты >> Строительство >> Башенные краны и другие машины, используемые в строительстве
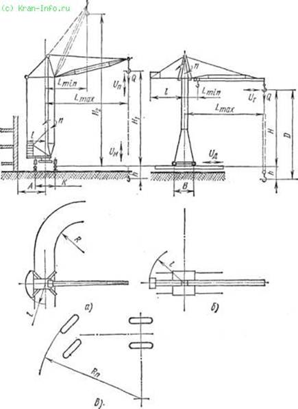
Рис. 1.3.1. Основные параметры кранов
Основные параметры кранов:
а и б – башнями соответственно поворотной и стрелой подъемной и неповоротной и стрелой балочной
в – на пневмоколесном ходу
n – скорость поворота
Vn, Vm – скорость подъема, посадки на место, движения тележки, движения крана
Размеры и грузоподъемные свойства башенных кранов определяются рядом характеристик, называемых параметрами. К основным параметрам (PC—4210—73) относятся: вылет, грузоподъемность, грузовой момент, высота подъема, глубина опускания, колея, база, скорости рабочих движений крана, установленная мощность, задний габарит, радиус закругления, конструктивная и общая массы крана, максимальное давление колеса, производительность.
Вылет L — это расстояние по горизонтали от оси вращения поворотной части крана до вертикальной оси грузозахватного органа (крюковой подвески) при установке крана на горизонтальной площадке. У крана с подъемной стрелой вылет регулируется изменением угла наклона стрелы. При оборудовании крана балочной стрелой вылет изменяют перемещением грузовой тележки вдоль стрелы. Изменение вылета называется маневровым, если оно осуществляется с грузом на крюке, и установочным, если без груза.
Грузоподъемность Q крана характеризуется максимально допустимой массой рабочего груза, на подъем которого рассчитан кран. В величину грузоподъемности включается также масса съемных грузозахватных органов (грейфера, траверс, строп), за исключением массы крюковой подвески.
Поскольку башенные краны выполняются с изменяемым вылетом, грузоподъемность крана (исходя из условий прочности конструкции и устойчивости крана) устанавливается в зависимости от вылета. Максимальная грузоподъемность соответствует, как правило, минимальному вылету.
Грузовой момент М представляет собой произведение грузоподъемности на соответствующий вылет. Поскольку грузовой момент учитывает два основных параметра, его часто используют в качестве главного обобщенного параметра крана. У многих башенных кранов грузовой момент на различных вылетах принимается постоянным.
Поэтому при уменьшении вылета в два раза удается повысить грузоподъемность также в два раза при сохранении постоянного грузового момента.
Под высотой подъема Я понимается расстояние по вертикали от уровня стоянки крана до грузозахватного органа, находящегося в верхнем рабочем положении. При наличии подъемной стрелы высота подъема устанавливается зависимости от вылета. В характеристике этих кранов указывается либо высота подъема для двух крайних вылетов: максимального Ht и минимального Я2, либо приводится в виде графика в зависимости от вылета. При этом под уровнем стоянки крана понимается горизонтальная поверхность основания (например, пути перемещения кранов на пневмоколесном или гусеничном ходу или поверхность головок рельсов для рельсовых кранов), на которую опирается неповоротная часть крана. Для самоподъемных кранов, у которых опоры могут располагаться на разной высоте, уровень стоянки определяется по нижней опоре крана.
Глубиной опускания h называется расстояние по вертикали от уровня стоянки крана до грузозахватного органа, находящегося в нижнем рабочем положении.
Диапазоном подъема называется расстояние по вертикали между верхним и нижним рабочими положениями грузозахватного органа.
Колея К представляет собой расстояние по горизонтали между осями рельсов (для рельсовых кранов) или колес ходовой части (для кранов на пневмоколесном или гусеничном ходу).
Базой В крана называется расстояние между осями опор крана, перемещающихся по одному общему рельсу (для рельсовых кранов) или располагаемых с одной стороны крана относительно его продольной оси.
Задний габарит представляет собой наибольший радиус поворотной части крана (поворотной платформы) со стороны, противоположной стреле. От величины заднего габарита у кранов с поворотной башней зависит выбор величины удаления Л кранового пути от стены возводимого здания. Расстояние А для обеспечения безопасного просвета между краном и зданием для кранов с поворотной башней принимается на 0,7—1,0 м больше величины заднего габарита.
Скоростью подъема (опускания) грузам называется скорость вертикального перемещения рабочего груза. При наличии многоскоростных лебедок в характеристике крана указывается скорость подъема при каждой из возможных скоростей лебедок.
Скоростью посадки vu называется наименьшая скорость опускания (подъема) наибольшего рабочего груза при его монтаже или укладке.
Скоростью поворота п называется скорость вращения поворотной части крана. Скорость поворота определяется при наибольшем вылете с рабочим грузом на крюке и измеряется числом оборотов в минуту.
Скоростью передвижения крана од называется рабочая скорость передвижения крана по горизонтальному пути с рабочим грузом.
Скоростью передвижения тележки vr называется скорость передвижения грузовой тележки по горизонтальному пути с наибольшим рабочим грузом.
Скоростью изменения вылета vr y кранов с подъем-4 ной стрелой называется средняя скорость горизонтального перемещая рабочего груза при изменении вылета от наибольшего до наименьшего Иногда вместо скорости изменения вылета в характеристике на указывается время изменения вылета, т. е. время, необходимое на изменение вылета от наибольшего до наименьшего при изменении вылета под нагрузкой.
Установленной мощностью называют суммарную мощность электродвигателей всех механизмов, установленных на кране. Иногда в характеристиках указывается установленная мощность рабочих механизмов, включающая мощность механизмов, которые неоднократно работают в каждой смене (например, грузовой лебедки, стреловой или тележечной лебедки, механизмов поворота и передвижения крана).
Учитывая, что краны часто обслуживают здания сложной конфигурации и при этом передвигаются по криволинейным путям, в число параметров крана ввели радиус закругления. Он представляет собой наименьший радиус закругления оси внутреннего рельса на криволинейном участке пути. Для кранов на пневмоколесном ходу в качестве параметра используется радиус поворота Rn, т. е. наименьший радиус окружности, описываемый внешним передним колесом крана при изменении направления движения.
Конструктивной массой называется масса крана без балласта и противовеса в не заправленном состоянии, т. е. без топлива, масла, смазочных материалов и воды.
Общей массой называется полная масса крана с балластом, противовесом в полностью заправленном состоянии.
Максимальное давление колеса — это величина наибольшей нагрузки, передаваемой одним ходовым колесом на крановый путь. По величине максимального давления колеса подбирается конструкция кранового пути.
Производительностью крана называется либо суммарная жилая площадь, построенная с помощью крана в год (тыс.м2/год), либо суммарная масса грузов, перемещенных или смонтированных краном в год (т/год). Для планирования загрузки кранов иногда используется и производительность, измеряемая числом циклов за смену. При этом под циклом понимается комплекс операций, выполняемых краном от начала подъема одного груза до начала подъема следующего. В сопроводительной документации к крану (в частности, в его паспорте) указывается допустимая при работе крана расчетная скорость ветра, а также допустимый ветровой район установки крана. Скорость ветра для каждого района является переменной величиной, зависящей от высоты над поверхностью земли. В паспорте крана указывается допустимая при работе скорость ветра на высоте 10 м.
