Технология возведения подземной части зданияРефераты >> Строительство >> Технология возведения подземной части здания
Объемом арматурных работ (согласно ЕНиР Е4-1-44) является общее число арматурных каркасов (известной массы, кг), устраиваемое в конструкции.
Определим массу одного арматурного каркаса:
где 60кг/м3 – степень армирования каркасом, принимаемая по заданию.
Общее число арматурных каркасов равно числу колонн, запроектированных в здании nколонн= nкаркасов =21.
4.5.3 Укладка и уплотнение бетонной смеси
В колонны высотой до 5м со сторонами сечения до 0,8м, не имеющие перекрещивающихся хомутов, бетонную смесь укладывают сразу на всю высоту. Смесь осторожно загружают сверху и уплотняют внутренними вибраторами.
Нижняя часть опалубки колонн и стен при бетонировании их сверху опалубки, во избежание образования раковин в бетоне, сначала заполняется на высоту 100…200мм цементным раствором состава 1:2 или 1:3.
Бетонирование производится методом «кран-бадья».
Нормой времени работ по укладке и уплотнению бетонной смеси (согласно ЕНиР Е4-1-49) является объем уложенного бетона (бетона в деле).
Определим объем бетонных работ, равный объему укладываемой бетонной смеси:
4.5.4 Выдерживание уплотненного бетона и уход за ним
Объем работ по покрытию бетонной поверхности опилками (ЕНиР Е4-1-54) равен произведению площади бетонируемой поверхности
и толщины слоя опилок – ![]()
Количество работ по смачиванию бетонной поверхности водой равно площади бетонируемой поверхности:
(согласно ЕНиР Е4-1-54).
Объем работ по снятию опилок с бетонной поверхности равен объему работ по покрытию ими этой бетонной поверхности:
4.5.5 Распалубливание конструкции колонны
Распалубливание конструкции колонны производим при достижении бетоном
40-60% – й проектной прочности (3 суток).
Объем работ по распалубке колонны равен объему работ по устройству опалубки (пункт 4.5.1.).
Таблица 4.5.1*. Ведомость объемов работ по устройству колонн здания
|
№ |
Наименование работы по устройству колонн здания |
Единица измерения по ЕНиРу |
Количество работ |
Примечание |
|
1 |
Установка опалубки |
м2 |
95,76 |
Пункт 4.5.1. |
|
2 |
Армирование |
Число каркасов,
|
21 |
Пункт 4.5.2. |
|
3 |
Бетонирование |
м3 |
9,6 |
Пункт 4.5.3. |
|
4 |
Выдерживание уплотненного бетона и уход за ним: - покрытие поверхности опилками - смачивание водой - снятие опилок |
м3 м2 м3 |
0,168 3,36 0,168 |
Пункт 4.5.4. |
|
5 |
Разборка опалубки |
м2 |
95,76 |
Пункт 4.5.5. |
4.6 Устройство наружных стен здания.
Технологический процесс возведения подземной части здания обязательно включает в себя устройство стен. Высота стен – 3,3м, толщина наружных стен – 0,5м.
4.6.1 Установка опалубки
Крупнощитовая разборно-переставная опалубка стен состоит из модульных щитов, которые могут собираться в опалубочные панели практически любых размеров и конфигураций. Каркас опалубочных щитов изготовлен из высокоточного профиля алюминиевых сплавов, поперечное сечение которых обеспечивает установку палубы из ламинированной фанеры толщиной 18 и 21 мм, торцы которой конструктивно защищены самим алюминиевым профилем и герметиком.
Крупнощитовая опалубка стен состоит из щитов опалубки, подмостей, навешиваемых на эти щиты, раскрепляющих подкосов и элементов раскрепления. Щиты в опалубочные панели собирают посредством центрирующих замков. Для выверки панели опалубки в проектном положении опалубка снабжена подкосами, винтовые стяжки муфты которых позволяют регулировать установку панели в вертикальной плоскости.
Комплект опалубки позволяет выполнять угловые соединения щитов, стыки примыкания стен, устройство примыканий-компенсаторов и других возможных примыканий щитов опалубки друг к другу.
Для возведения наружных стен здания предусмотрены специальные подмости, представляющие собой цельнометаллические кронштейны с щитами настила и ограждениями.
В первую очередь монтируют щиты (панели) наружной опалубки, их устанавливают на рабочие подмости, выверяют и закрепляют с помощью подкосов. Далее внутренние щиты (панели) опалубки в процессе установки последовательно прикрепляют к наружным щитам с помощью винтовых стяжек.
Длина панелей, собранных из щитов, не должна превышать 8 м.
Поскольку бетонирование наружных стен здания совершается участками (см.пункт 4.6.3.), принимаем 48 участков, ограниченных щитами (панелями) опалубки (средняя длина участка равна 6м).
Рис. 4.6.1.1. Устройство опалубки. Участки бетонирования
Определим объем опалубочных работ как площадь поверхности опалубки, соприкасающейся с бетоном (согласно ЕНиР Е4-1-34):
∑ Sопал. пов.=((6+0,5+6)∙44+(6,5+0,5+6,5)∙4)∙3,3=1993,2 (м2).
4.6.2 Армирование наружных стен здания
Армирование стен осуществляется сетками.
Объемом арматурных работ (согласно ЕНиР Е4-1-44; установка сеток и каркасов вручную) является общее число арматурных сеток (известной массы,кг),устраиваемое в конструкции.
Найдем общую массу арматуры, устанавливаемой в наружных стенах здания: масса арматуры равна произведению всего объема конструкции Vнар.стен, м3, и степени армирования сеткой, принимаемой по заданию 15 кг/м3.
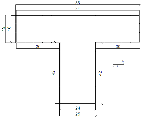
Марм.сет.= Vнар.стен∙15=(84+18,5∙2+30,5∙2+42∙2+24)∙0,5∙3,3∙15=7177,5 (кг).
Принимая, что размеры сеток не должны превышать 3*7м, получаем количество сеток n=48∙2∙2=192 (1,65*6м), устраиваемых между разделительными щитами опалубки стен.
Найдем среднюю массу одной арматурной сетки:
4.6.3 Укладка и уплотнение бетонной смеси
