Технология возведения подземной части зданияРефераты >> Строительство >> Технология возведения подземной части здания
Объем работ по распалубке полос бетонирования равен объему работ по устройству опалубки (пункт 4.2.1.).
Таблица 4.2.4.1. Ведомость объемов работ по распалубке конструкции
|
№ |
Наименование работ по распалубке конструкции |
Единица измерения по ЕНиРу |
Количество работ |
Примечание |
|
1 |
Разборка опалубки |
м2 |
252 |
Пункт 4.2.4. |
4.3 Устройство ленточного фундамента
Комплексный процесс производства строительных конструкций из монолитного бетона включает в себя:
· установку опалубки
· армирование конструкции
· бетонирование (укладку и уплотнение бетонной смеси)
· выдерживание уплотненного бетона и уход за ним
· распалубливание конструкции
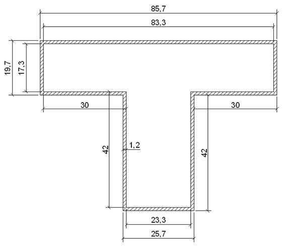
Монолитный ленточный фундамент устанавливается под наружные стены (его габариты показаны на (рис.3.1.4.)). На рис. 4.3.1. представлено устройство монолитного ленточного фундамента под наружные стены здания.
4.3.1 Установка опалубки
При устройстве ленточных фундаментов (применяем деревянную торцевую мелкощитовую опалубку) опалубку формируют из инвентарных щитов, которые соединяют между собой с помощью замков разной конструкции. В случае вставок между щитами доборных элементов шириной до 15 см могут быть использованы удлиненные замки. Поперечный размер конструкции фиксируют временными распорками на подкосах и торцевыми щитами опалубки. Для восприятия бокового давления бетонной смеси противолежащие панели соединяют винтовыми стяжками (тяжами).
Определим объем опалубочных работ как площадь поверхности опалубки, соприкасающейся с бетоном (согласно ЕНиР Е4-1-34):
∑ Sопал. пов.=
=((17,3∙2+83,3+30∙2+42∙2+23,3)+(19,7∙2+85,7+30∙2+42∙2+25,7))∙0,3=174 (м2).
Рис. 4.3.1. Устройство монолитного ленточного фундамента под наружные стены здания
4.3.2 Армирование ленточного фундамента
Арматура – стальные стержни, прокатные профили и проволока, расположенные в бетоне для совместной с ним работы.
Сборно-монолитные и монолитные ненапрягаемые конструкции армируют укрупненными монтажными элементами в виде сварных сеток, плоских и пространственных каркасов, которые изготовляют вне возводимого сооружения и затем устанавливают монтажными кранами.
Арматуру подразделяют по назначению в конструкции на рабочую, распределительную и монтажную.
Рабочая арматура воспринимает растягивающие усилия, возникающие в железобетонных конструкциях от собственной массы и внешних нагрузок.
Распределительная арматура служит:
· для равномерного распределения нагрузок между рабочими стержнями;
· для обеспечения их совместной работы;
· для связи рабочих стержней между собой, препятствуя смещению рабочей арматуры при бетонировании.
Монтажная арматура обычно не воспринимает усилий, а обеспечивает точное положение в опалубке рабочих стержней и плоских арматурных сеток и элементов.
В промышленном строительстве применяют арматурные стержни диаметром до 40мм.
Армирование конструкции производится после установки опалубки перед процессом бетонирования.
Армирование ленточного фундамента совершается сварными арматурными сетками. Они состоят из взаимно перекрещивающихся стержней, соединенных в местах пересечения сваркой. Их выпускают с продольной, поперечной и взаимно-перпендикулярной рабочей арматурой. В общем виде сетки объединяют рабочую и распределительную арматуру и состоят из отдельных проволок диаметром от 3 до 9мм включительно и стержней из арматурной стали диаметром 10мм, расположенных в двух взаимно перпендикулярных направлениях и соединенных в местах пересечения контактной точечной сваркой. Эти сетки применяют при необходимости обеспечить конструкцию минимальным нерасчетным армированием. Расстояние между отдельными стержнями – в пределах от 50 до 250мм, образующиеся между стержнями и проволоками ячейки обычно имеют размер от 50*100 до 150*250мм. Общая ширина сеток по осям крайних стержней установлена от 900 до 3500мм (сетка при транспортировании должна укладываться между продольными бортами грузового автомобиля). Длина арматурной сетки не должна превышать 7м.
Объемом арматурных работ (согласно ЕНиР Е4-1-44; установка сеток и каркасов вручную) является общее число арматурных сеток (известной массы,кг),устраиваемое в конструкции.
Найдем общую массу арматуры, устанавливаемой в ленточном фундаменте: масса арматуры равна произведению всего объема конструкции Vфундамента, м3, и степени армирования сеткой, принимаемой по заданию 15 кг/м3.
Марм.сет.= Vфундамента∙15=(19,7∙85,7 – 17,3∙83,3 – 23,3∙1,2+43,2∙25,7 – 40,8∙23,3 – 25,7∙ ∙1,2)∙0,3∙15= 348∙0,3∙15=1566(кг).
Определим количество сеток n длиной, не превышающей 7м:
при средней длине одной арматурной сетки 6,6м n=88.
Найдем среднюю массу одной арматурной сетки:
4.3.3 Укладка и уплотнение бетонной смеси
В ленточные фундаменты бетонную смесь укладываем по способу непрерывного бетонирования методом «кран-бадья».
Ее уплотнение осуществляем внутренним (глубинным) вибратором.
Нормой времени работ по укладке и уплотнению бетонной смеси (согласно ЕНиР Е4-1-49) является объем уложенного бетона (бетона в деле).
Определим объем бетонных работ, равный объему укладываемой бетонной смеси:
4.3.4 Выдерживание уплотненного бетона и уход за ним
Объем работ по покрытию бетонной поверхности опилками (ЕНиР Е4-1-54) равен произведению площади бетонируемой поверхности
и толщины слоя опилок – ![]()
Количество работ по смачиванию бетонной поверхности водой равно площади бетонируемой поверхности:
(согласно ЕНиР Е4-1-54).
Объем работ по снятию опилок с бетонной поверхности равен объему работ по покрытию ими этой бетонной поверхности:
4.3.5. Распалубливание конструкции фундамента
Распалубливание конструкции фундамента производим при достижении бетоном 50% – й проектной прочности (3 суток).
Объем работ по распалубке ленточного фундамента равен объему работ по устройству опалубки (пункт 4.3.1.).
Таблица 4.3.2. Ведомость объемов работ по устройству ленточного фундамента под наружные стены здания
|
№ |
Наименование работы по устройству ленточного фундамента |
Единица измерения по ЕНиРу |
Количество работ |
Примечание |
|
1 |
Установка опалубки |
м2 |
174 |
Пункт 4.3.1. |
|
2 |
Армирование |
Число сеток,
|
88 |
Пункт 4.3.2. |
|
3 |
Бетонирование |
м3 |
104,4 |
Пункт 4.3.3. |
|
4 |
Выдерживание уплотненного бетона и уход за ним: - покрытие поверхности опилками - смачивание водой - снятие опилок |
м3 м2 м3 |
17,4 348 17,4 |
Пункт 4.3.4. |
|
5 |
Разборка опалубки |
м2 |
174 |
Пункт 4.3.5. |
