Анализ существующих технологий производства мясорастительных консервов
Рисунок 1.Варочный котел.
1-открытая емкость; 2-паровая рубашка; 3-съемная крышка; 4-штурвал опрокидывателя; 5-цапфы крепления котла.
Измельчение.
При производстве фаршевых, паштетных консервов; консервов детского и диетического питания и мясных концентратов и других мясное сырье до различной степени, требуемой по технологическим условиям, измельчают на волчках.
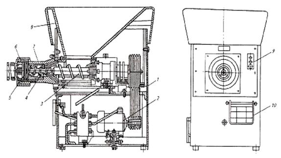
Волчок (рис. 2) установлен на станине сварной конструкции и включает механизм подачи сырья, режущий механизм, привод и загрузочную чашу.
В механизм подачи сырья к режущему механизму входят рабочий шнек, вспомогательный шнек подачи сырья к рабочему шнеку и рабочий цилиндр с внутренними ребрами. Режущий механизм – ножи, установленные на хвостовике рабочего шнека, ножевые решетки и прижимное устройство. Откидной стол служит для санитарной обработки режущего механизма, откидная площадка обеспечивает удобство обслуживания. Защитно-пусковая аппаратура расположена в электрошкафу, который следует устанавливать в удобном для обслуживания месте.
Мясо подается в загрузочную чашу волчка по вертикальным спускам или подъемником К6-ФПЗ-1 из напольной тележки, откуда захватывается вспомогательным и рабочим шнеками и направляется к режущему механизму, где измельчается до заданной степени, что обеспечивается установкой ножей и соответствующих ножевых решеток. При переработке шрота порция загружаемого сырья не должна превышать 90 кг, в противном случае возможно зависание продукта в чаше [1].
Рисунок 2.Устройство волчка К6-ФВП-120:
1 – станина; 2 – привод; 3 – подающий шнек; 4 – рабочий шнек; 5 – режущий механизм; 6 – прижимное устройство; 7 – цилиндр; 8 – бункер; 9 – кнопки управления; 10 – откидная площадка.
Техническая характеристика волчка К6-ФВП-120
Производительность, кг/ч 2500
Диаметр решеток режущего механизма, мм 120
Установленная мощность, кВт 12.5
Габаритные размеры, мм
длина 1600
ширина 900
высота 1600
Масса, кг 800
Производительность волчка зависит от диаметра решетки.
Окончательное, более тонкое измельчение сырья при изготовлении фаршевых и паштетных консервов производят на куттере.
Куттер (рис. 3) состоит из вращающейся чаши 5 (частота вращения чаши 8—14 мин-1), закрытой на 2/з крышкой 1, ножевого вращающегося зала 2 с серповидными ножами (частота вращения вала 1000—2000 мин-1), выгружателя 3.
Рисунок 3. Куттер.
1 — крышка чаши; 2 —ножевой вал; 3 - выгружатель; 4— станина; 5 — чаша;6 – тележка.
Все узлы крепятся на станине 4. Куттер загружают вручную либо транспортными средствами. Разгружают его специальным выгружателем в напольные тележки 6, бункера, емкости для перекачки фаршей.
Вместе с фаршем в куттер вносят специи (соль, перец, лук измельченный), подготовленный каррагинан, измельченный на волчке нут, масло сливочное, бульон и куттеруют 10-15 минут.
Наполнение банок.
Наполнение банок требует тщательного контроля не только общей массы консервов в банке, но и массы каждого компонента, входящего в их состав.
Наполнение банок определенной массой продукта имеет важное значение и для проведения заключительных операции технологического процесса. Так, эффективность эксгаустирования частично зависит от размеров незаполненного верхнего пространства в банке, а отношение твердой фазы содержимого банки к жидкой оказывает влияние на скорость проникновения тепла в банку, а следовательно, и на режим стерилизации.
Теоретически установлено, что увеличение степени наполнения жестяной банки способствует снижению образующегося в ней давления. При расфасовке в банки продукта особое внимание должно быть уделено технике наполнения банок для предупреждения попадания в них воздуха.
Рисунок 4. Агрегат-наполнитель консервных жестяных банок фаршем.
1— шприц CAM-80; 2 — цевка; 3, 4 — зубчатая передача; 5 — фрикцион управления; 6— станина; 7 — рабочий стол; 8 и 9 — коническая зубчатая передача; 10 — ленточный транспортер; 11 — вал передачи; 12 — ротор подачи банок; 13 — механизм блокировки.
Консервные банки паштетной массой наполняют на шприцах-дозаторах типа «Идеал» и САМ-80. Усовершенствованная модель дозатора такого типа на базе гидравлического шприца CAM-8G. Агрегат-наполнитель консервных банок состоит из шприца 1, имеющего изогнутую цевку 2, ленточного транспортера 10 подачи пустых банок, ротора подачи банек 12 и механизмов привода 3, 4, 8, 9 и 11.
Пустые банки ленточным транспортером 10, установленным на станине 6 и приводимым в движение от шестерни 3 шприца 1 через зубчатое колесо 4 и вал 11, а также коническую пару 8 и 9, поступают на рабочий стол 7. Одновременно с работой ленточного транспортера 10 осуществляет вращение шестипазовый ротор подачи банок 12, который захватывает банку и подает ее на наполнение через цевку 2 шприца 1. При подаче банки под цевку ротор останавливается и банка наполняется фаршем. Механизмы поворота ротора и дозировки работают синхронно. При дальнейшем повороте ротора 12 банка выводится из дозатора. Управление агрегатом производится через фрикцион 5. При отсутствии банки шприц при помощи специального механизма блокировки 13 выключается.
Закатка банок.
При фасовке консервов в банки попадает воздух. Подсос воздуха в жидкие и пюреобразные продукты происходит и при перекачивании их насосом на розлив. Чем ниже температура продукта во время фасовки, тем больше содержится в нем воздуха.
Воздух в банке нежелателен, так как кислород способствует окислению различных веществ продукта, увеличивает коррозию жести в открытых от лака или олова местах, дает возможность развиваться не убитым при стерилизации аэробным микроорганизмам.
При стерилизации консервов к давлению водяного пара, образующегося в банке при нагреве, прибавляется давление в результате расширения продукта и оставшегося в банке воздуха. В банке создается избыточное давление 196 .392 кПа, которое может привести к деформации металлической тары или срыву крышек со стеклянных банок. Увеличение давления внутри банок зависит от вида консервов, размеров и материала банок, поэтому удаление воздуха из банок с продуктами перед укупоркой имеет большое практическое значение. Этот процесс называется эксгаустированием (от английского эксгауст — вытягивать). Применяют тепловое, механическое, а иногда и совместное эксгаустирование.
Механическое эксгаустирование проводят в вакуум-закаточных аппаратах отсасыванием воздуха из заполненных продуктом банок при разрежении 80 .60 кПа (в отдельных случаях 30 кПа). Величину разрежения при укупорке устанавливают для каждого вида консервов с учетом их состава.
