Надежность буксового узла вагона тележки модели 18-100
2 Построение блок-схемы и расчет надежности буксового узла.
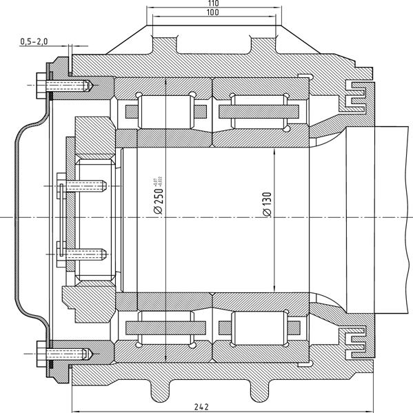
Букса – система, состоящая из двадцати одного смешанно соединенного элемента (рисунок 2.1): корпус буксы, лабиринтное кольцо, подшипник задний, подшипник передний, крепительная крышка, шесть болтов, шесть шайб, смотровая крышка, резиновая прокладка, торцевая гайка, стопорная планка.
Рисунок 2.1 – Буксовый узел
Составим блок-схему буксового узла:
Рисунок 2.2 – Блок-схема надежности буксового узла
Вероятность безотказной работы буксового узла, (в соответствии со схемой на рисунке 2.2 и рисунком 2.1)
определяется по формуле:
, (2.1)
Отсюда получаем:
(2.2)
где
– вероятность безотказной работы корпуса буксы;
– вероятность безотказной работы лабиринтного кольца;
– вероятность безотказной работы заднего подшипника;
– вероятность безотказной работы переднего подшипника;
– вероятность безотказной работы крепительной крышки;
– вероятность безотказной работы болта;
– вероятность безотказной работы шайбы;
– вероятность безотказной работы заднего подшипника;
– вероятность безотказной работы смотровой крышки;
– вероятность безотказной работы резиновой прокладки;
– вероятность безотказной работы торцевой гайки;
– вероятность безотказной работы стопорной планки;
Подшипник задний – система, состоящая из восемнадцати последовательно соединенных элементов: кольца наружного, кольца внутреннего, сепаратора, кольца упорного, четырнадцати роликов.
Вероятность безотказной работы подшипника заднего,
, определяется по формуле:
(2.3)
Подшипник передний – система, состоящая из восемнадцати последовательно соединенных элементов IV уровня: кольца наружного, кольца внутреннего, сепаратора, кольца упорного, четырнадцати роликов.
Вероятность безотказной работы подшипника переднего,
, определяется по формуле:
(2.4)
где
– вероятность безотказной работы наружного кольца;
– вероятность безотказной работы внутреннего кольца;
– вероятность безотказной работы сепаратора;
– вероятность безотказной работы кольца упорного;
– вероятность безотказной работы ролика.
3 Определение показателей надежности буксового узла на стадии проектирования
3.1 Показатели безотказности
При анализе безотказности, вагон рассматривается, как сложная механическая система, состоящая из n последовательно соединенных в смысле надежности расчетных элементов, каждая из которых включает m последовательно соединенных деталей. Отказ каждой расчетной части ведет к отказу расчетной части, а отказ любой расчетной части ведет к отказу вагона.
Вероятность безотказной работы определяется для модели постепенного отказа усталостного характера без ограничения ресурсов. Должно действовать условие, что лишь небольшая часть амплитуд динамических напряжений превышает предел выносливости. Расчет вероятности безотказной работы производиться на основе гипотезы о смешении выносливости деталей вследствие перегрузок по формуле:
(3.1.1)
где Ф – функция Лапласа;
– коэффициент вариации предела выносливости,
;
– относительный коэффициент запаса,
; (3.1.2)
где
– значение, определяемое по номограмме в зависимости от показателей степени, кривой
усталости и коэффициента вариации динамических напряжений в случае нормального
распределения динамических напряжений,
;
– допустимый коэффициент запаса сопротивления усталости,
, (3.1.3)
где
– среднее значение амплитуды от эксплуатационных нагрузок,
;
VE – коэффициент вариации амплитуд динамических напряжений, VE=0,25;
– максимальная расчетная квантиль,
;
– коэффициент вариации предела выносливости для стальных отливок,
;
Подставляя значения в формулу (3.4) получаем:
Подставляя значения в формулу (3.3) получаем:
Подставляем значения в формулу (3.1) получаем:
3.2 Параметр потока отказов.
Показатель «параметр потока отказов» используется для анализа, как вагона в целом, так и отдельных расчетных частей и входящих в них отдельных деталей, главным образом по фактическим эксплуатационным данным.
Параметр потока отказов в общем случае равен:
