Строительство здания Реабилитационный центрРефераты >> Строительство >> Строительство здания Реабилитационный центр
Продолжение таблицы 5.5.
|
Узлы |
23 |
24 |
25 |
26 |
27 |
28 |
29 |
30 | |||||||||||||||
|
Стержни |
23-18 |
23-22 |
23-24 |
23-28 |
24-25 |
24-29 |
24-19 |
24-23 |
25-20 |
25-24 |
25-30 |
20-15 |
21-16 |
22-17 |
23-18 |
24-19 | |||||||
|
к |
0,189 |
0,311 |
0,311 |
0,189 |
0,452 |
0,274 |
0,274 |
0,452 |
0,378 |
0,622 |
0,378 |
- |
- |
- |
- |
- | |||||||
|
Моп |
- |
-114,3 |
+114,3 |
- |
- |
-114,3 |
- |
-114,3 |
- |
+116,7 |
- |
- |
- |
- |
- |
- | |||||||
|
1 цикл |
- |
- |
- |
- |
+35,5 |
+43,3 |
+35,5 |
+43,3 |
-44,1 |
-72,6 |
-44,1 |
- |
- |
- |
- |
- | |||||||
|
- |
+25,8 |
-21,7 |
- |
+15,7 |
- |
+15,7 |
- |
-15,7 |
- |
-15,7 |
-15,7 |
- |
- |
- |
+17,8 | ||||||||
|
2 цикл |
+0,8 |
+1,3 |
+1,3 |
+0,8 |
-9,8 |
-11,8 |
-9,8 |
-11,8 |
+5,9 |
+9,8 |
+5,9 |
- |
- |
- |
- |
- | |||||||
|
- |
+3,4 |
- |
-2,5 |
-5,5 |
+0,7 |
-4,9 |
+0,7 |
+3,1 |
+6,9 |
+3,1 |
+4,0 |
+1,5 |
- |
-2,1 |
-2,2 | ||||||||
|
3 цикл |
-0,2 |
-0,3 |
-0,3 |
-0,1 |
+3,0 |
+3,7 |
+3,0 |
+3,7 |
-3,8 |
-6,2 |
-3,8 |
- |
- |
- |
- |
- | |||||||
|
Итого |
+0,6 |
-84,1 |
+93,9 |
-1,8 |
+38,9 |
-78,4 |
+39,5 |
-78,4 |
-54,6 |
+54,6 |
-54,6 |
-11,7 |
+1,5 |
- |
-2,1 |
+15,6 | |||||||
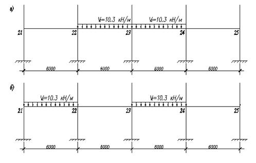
Для определения изгибающих моментов от временной нагрузки распологаем последнюю через один пролет для получения максимального пролетного момента и в двух смежных пролетах для получения максимального пролетного момента.
Приняв для расчета и конструирования колонну нижнего этажа по оси «3», производим загрузку временной нагрузкой только ригель по узлам 21-22-23-24-25.
Моменты защемления:
Моп=
Рисунок 5.2. Схемы загружения временной нагрузкой
Таблица 5.6. Изгибающие моменты от временной нагрузки по схеме А.
|
Узлы |
21 |
22 |
23 |
24 |
25 | ||||||||||||||
|
Стержни |
21-В |
21-Н |
21-22 |
22-21 |
22-В |
22-Н |
22-23 |
23-22 |
23-В |
23-Н |
23-24 |
24-23 |
24-В |
24-Н |
24-25 |
25-24 |
25-В |
25-Н | |
|
к |
0,274 |
0,274 |
0,452 |
0,311 |
0,189 |
0,189 |
0,311 |
0,311 |
0,189 |
0,189 |
0,311 |
0,311 |
0,189 |
0,189 |
0,311 |
0,452 |
0,274 |
0,274 | |
|
Моп |
- |
- |
- |
- |
- |
- |
+31,0 |
-31,0 |
- |
- |
+31,0 |
-31,0 |
- |
- |
- |
- |
- |
- | |
|
1 цикл |
- |
- |
- |
-9,6 |
-5,9 |
-5,9 |
-9,6 |
- |
- |
- |
- |
+9,6 |
+5,9 |
+5,9 |
+9,6 |
- |
- |
- | |
|
- |
- |
-4,8 |
- |
- |
- |
- |
-4,8 |
- |
- |
+4,8 |
- |
- |
- |
- |
+4,8 |
- |
- | ||
|
2 цикл |
+1,3 |
+1,3 |
+2,2 |
- |
- |
- |
- |
- |
- |
- |
- |
- |
- |
- |
- |
-2,2 |
-1,3 |
-1,3 | |
|
- |
- |
- |
+1,1 |
- |
- |
- |
- |
- |
- |
- |
- |
- |
- |
-1,1 |
- |
- |
- | ||
|
3 цикл |
- |
- |
- |
-0,3 |
-0,3 |
-0,3 |
-0,3 |
- |
- |
- |
- |
+0,3 |
+0,3 |
+0,3 |
+0,3 |
- |
- |
- | |
|
Итого |
+1,3 |
+1,3 |
-2,6 |
-8,8 |
-6,2 |
-6,2 |
+21,1 |
-35,8 |
- |
- |
+35,8 |
-21,1 |
+6,2 |
+6,2 |
+8,8 |
+2,6 |
-1,3 |
-1,3 | |
