Расчёт и проектирование конструкций балочной клеткиРефераты >> Строительство >> Расчёт и проектирование конструкций балочной клетки
Расчётные значения напряжений:
- нормальные
кН/см2 (из проверки по приведённым напряжениям в стенке);
- касательное
кН/см (2.8.2)
кН/см.
Для вычисления критических значений напряжений вычисляем вспомогательные параметры:
(2.8.3)
;
Фактическое значение:
.
Коэффициент условного защемления:
Определим граничное условие:
по таблице24 [4].
![]()
выбираем второй вариант.
Критические напряжения местного смятия определим по формуле:
, кН/см2 (2.8.4)
где
коэффициент принимаемый по таблице 23 [4]
кН/см2
, кН/см2 (2.8.5)
кН/см2
где
коэффициент принимаемый по таблице 25 [4]
, кН/см (2.8.6)
кН/см.
где
(2.8.7)
местная устойчивость стенки обеспечена с установкой поперечных рёбер жёсткости в 2000 мм.
2.9. Расчёт и конструирование монтажного стыка на высокопрочных болтах
Принимаем для стыка болты ø24 мм из стали 40Х “ Селект ” с
.
Отверстия под болты
.
Способ подготовки поверхности – газопламенный без консервации.
Способ регулировки усилия натяжения болтов – по моменту закручивания.
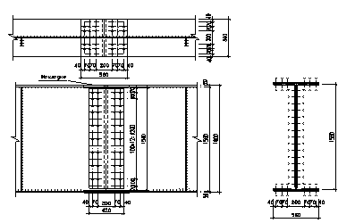
Рисунок 8 – Монтажный стык главной балки на высокопрочных болтах
Расчётное усилие, воспринимаемое одной поверхностью трения при наличии одного болта:
, (2.8.1)
где
- принимаем по таблице 62* [4]
коэффициент условия работы болтовых соединений,
- так как число болтов >10;
.
кН.
2.9.1. Расчёт стыков поясных швов
Количество болтов в стыке поясов определяем по расчётному усилию растяжения воспринимаемому растянутым (нижним) поясом
, кН, (2.8.2)
кН.
Количество болтов с каждой стороны от стыка поясов
,
где
число поверхностей трения (число отрезов);
.
Принимаем 14 болтов.
Ширина накладки снаружи 560 мм (равны ширине пояса).
Толщину накладок определяем из условия их равнопрочности с поясом:
, см, (2.8.3)
.
2.9.2. Расчёт стыка стенок
Определяем шаг:
Стенку балки перекрываем парными накладками
из условия их равнопрочности со стенкой на изгиб.
2.9.3. Проверка ослабленного сечения
Для расчёта стыка стенки определяем долю изгибающего момента воспринимаемого стенкой:
, кН*м, (2.9.3.1)
кН*м.
Стенку балки перекрываем 2-мя накладками толщиной 10 мм:
Назначаем шаг болтов по высоте стенки 100 мм.
Исходя из соображений конструирования, назначаем:
.
Для расчёта стыка стенок, определяя долю изгибающего момента, воспринимающему стенкой балки
, кН*м, (2.9.3.2)
, кН, (2.9.3.3)
,где
см4.
Из опыта проектирования принимаем 2 вертикальных ряда, n=2
Наиболее нагруженный болт в соседней стенке удовлетворяет требованиям прочности.
Проверим прочность сечения поясов по ослабленному сечению:
условие удовлетворяется.
Определим расчётное значение площади:
.
Определим действующие усилия в поясных листах:
.
Проверка ослабленного сечения.
Условие прочности:
,
условия прочности ослабленного сечения соблюдаются.
2.10 Конструкция сварного монтажного стыка главной балки
Ручная электродуговая сварка.
На монтаже сжатый пояс и стенку соединяют прямым стыковым швом, растянутый – наклонным под углом 600 для обеспечения равнопрочности.
