Переработка вторичного сырья - инструментальных сталей, осколков и пыли на основе твердых сплавов карбида вольфрама
Количество влаги 0,012кг. на 1кг. сухого воздуха (Oi-23%, N2-77%), следовательно 1кг. влажного воздуха будет содержать: кислорода: 0,23*1/1,012=0,227 азота: 0,77*1/1,012=0,761 водяного пара: 0,012*1/1,012=0,012
Теплосодержание кислорода при 600°С составляет 849,9 кДж/нм3, в пересчете на 900°С: 849,9*900*22,4/600*32=892,395 кДж/кг Теплосодержание воздуха при 900°С, (кДж/кг):
0,027*892,395+0,761 *964,32+0,012* 1806,93=779,625
Количество тепла, расходуемого на нагревание 1кг. воздуха от 20°С до 900°С, кДж: 779,625-20,376=759,249
6.1.3.2. Необходимый избыток воздуха.
785538,936/759,249=1034,626 кг/ч
6.1.3.3. Суммарный расход воздуха.
330,189+1034,626=1364,815 кг/ч Коэффициент избытка воздуха: 1364,815/330,189=4,13
6.1.4. Определение размеров сечения печи
При обжиге в кипящем слое гранул крупностью до 2мм., оптимальный расход составляет 750 нм3/ч*м2 Оптимальный расход воздуха, выраженный в кг/ ч*м2 определим, приняв среднюю молекулярную массу воздуха равной 29 г/моль:
750*29/22,4=970,982
Площадь пода печи, м2: S=1364,815/970,982=1,4 примем 1,5
Для определения размеров сечения принимаем, что шахта имеет вид окружности с радиусом:
S=rcR2, отсюда R2=S/n =1,5/3,14=0,477 следовательно R= V0,477= 0,69м. В соответствии с этим расстояние между точками загрузки и выгрузки равна: В=2К=1,38м.
6.2. Надслоевая зона
6.2.1. Приход тепла
6.2.1.1. Физическое тепло пыли и газов.
20009,644+357507,298+785538,936=1163055,878 кДж/ч
6.2.1.2. Тепло окисления.
Первичной пыли в циклонной пыли 1/3 от всей, степень окисления 47% на выходе из кипящего слоя, отсюда доля не окисленных реагентов 53%. В рукавном фильтре остается 1% компонентов пыли.
WC в первичной пыли, (кг/ч):
циклон: 24,234*0,53*1/3=4,281
рукав: 19,993*0,01=0, 199
Суммарное количество пыли окисляемое в надслоевой зоне, (кг/ч): 4,48
TiC в первичной пыли, (кг/ч):
циклон: 3,319*0,53*1/3=0,586
рукав: 2,489*0,01=0,025
Суммарное количество пыли окисляемое в надслоевой зоне, (кг/ч): 0,611
Тепло выделяемое при окислении в надслоевой зоне:
WC
АН! 173=-1190,5 кДж/моль
Q=l 190,5* 1000/195,86=6078,32 кДж/ч
TiC
ДНц7з=-1018,5 кДж/моль
д=1018,5*1000/59,84=17020,388кДж/ч
Суммарное количество тепла,(кДж/ч):
Q=27051,942+10399.457=37451,399
6.2.1.3. Приход тепла в надслоевой зоне.
1163055,878+37451,399=1200507,277 кДж/ч
6.2.2. Расход тепла
Так как количества окисляющихся компонентов в надслоевой зоне незначительны, примем, что количество тепла уносимое пылью и газами из слоя и из печи одинаковы и равны И63055,878 кДж/ч.
6.2.2.1. Потери тепла через стены и свод.
Примем, что потери тепла через стены и свод равны 3% от прихода тепла в надслоевую зону: 1200507,277*0,03=36015,218 кДж/ч
6.2.2.2. Суммарный расход тепла.
1163055,878+36015,218=1199071,096 кДж/ч
6.2.3. Разность между приходом и расходом тепла при 900°С
1200507,277-1199071,096=1436,181 кДж/ч
Вывод: Невязка - 0,12% от прихода тепла, следовательно температура отходящих газов определена с достаточной точностью.
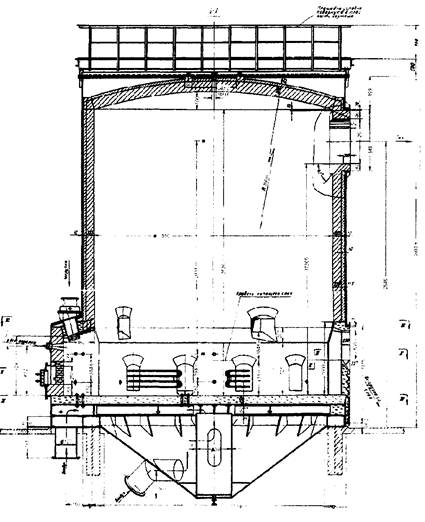
7. Печь кипящего слоя
Как показали расчеты площадь пода равна 1,5м2. Для расчета печи с такой площадью пода нужна спец литература. Целью данной работы не является данный расчет, и рисунок 1., представленный ниже, является приблизительной копией нужной печи кипящего слоя. Рисунок 1. Печь кипящего слоя [4].
8. Уточнение аппаратурного оформления
8.1. Щековая дробилка [14]
Основной проблемой схемы переработки является измельчение сырья. Рисунок 2. Щековая дробилка
Достижимая конечная крупность зависит от выбранной ширины щели и составляет: dso= 15 мм (наибольшая ширина щели) dso = 1 мм (наименьшая ширина щели).
Принцип действия:
Лабораторная проба измельчается в закрытом рабочем пространстве воздействием большого давления между двумя дробящими плитами. Между двумя боковыми опорными стенками находится неподвижная дробящая плита. Второй дробящей плитой, которая приводится в движение эксцентриком, проба втягивается и прижимается к неподвижной дробящей плите. Вследствие очень большого давления между обеими плитами куски пробы раздрабливаются. Раздробленный материал выступает внизу через регулируемую снаружи разгрузочную щель. При непрерывной работе материал может, например, через желоб подводиться для дальнейшего измельчения в лабораторной дисковой мельнице.
Принадлежности:
Дробящие плиты и опорные стенки - предлагаются в различных материалах во избежание нежелательного загрязнения тюб при износе измельчительных элементов.
|
Материал |
Плотность г/см3 |
Износостойкость |
Применение для следующих материалов |
|
Твёрдый сплав карбида вольфрама 91% WC + 9%Со |
14,8 |
очень хорошая |
твёрдая, абразивная проба |
|
Двуокись циркония 94,8%Zr02 |
5,7 |
чрезвычайно хорошая |
абразивная проба, проба средней твёрдости, безжелезное измельчение |
Обычно дробящие плиты и опорные стенки изготавливаются из одинакового материала, однако, если боковые стенки не подвергаются большой нагрузке, то можно использовать стандартное исполнение их из закалённой инструментальной стали. Тонкое измельчение в диапазоне от 95 мм до 0,1 мм - монтажная станина с питающим желобом в комбинации с лабогатошой дисковой мельницей.
|
Технические данные |
Модель П |
|
Размер отверстия воронки |
100 х 100 мм |
|
Крупность загружаемого материала |
ок.95 мм |
|
Производительность |
200 кг/час |
|
Ширина щели (тонкость) |
1-15 мм |
|
Мощность двигателя |
2,2 кВт |
|
Вес |
нетто 205 кг брутто 245 кг |
|
Стандартное исполнение |
Дробящие плиты и боковые стенки из закалённой хромистой стали |
|
Размеры (ширина х глубина х высота) |
41x83x72 см |
