Технология приготовления хлеба
При бестарной перевозке и хранении муки и дополнительного сырья полностью механизируются погрузочно-разгрузочные операции, уменьшается штат рабочих, сокращаются простои автомобилей, снижаются затраты на перевозку и хранение, уменьшается распыл муки, ликвидируются затраты на тару, улучшается общее санитарное состояние предприятия.
В бестарных складах хранение муки осуществляют в силосах и бункерах, что имеет и технологические преимущества: муку легко перемещать из одного силоса в другой, аэрировать, подсортировывать, просушивать, быстро прогревать, используя теплые потоки воздуха.
Кроме того, силосы и бункера для хранения муки могут размещаться в отдельном здании, в пристройке к основному корпусу, встраиваться в габариты основного корпуса. Рекомендуется также открытая установка силосов и бункеров вне здания.
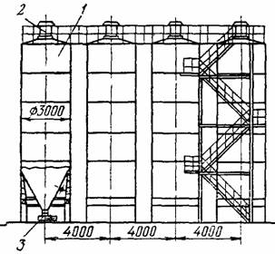
Отдельно стоящий бестарный склад муки. Склад (рис. 3.3) размещен в отдельном здании, примыкающем к хлебозаводу. Помещение для воздуходувок размещено в здании хлебозавода. Муку хранят в металлических круглых силосах ХЕ-160А диаметром 2500 мм; вместимость каждого составляет 30 т.
При разгрузке муки из муковоза гибкий шланг присоединяется к одной из линий пневмотранспортной установки, выходящей на щиток 1, и мука по трубе подается в силос 2. Для учета поступающей и отпускаемой муки предусмотрена установка каждого силоса на тензометрические датчики массы 4. Отпуск муки в производство осуществляют с помощью питателей 5.
Рис. 3.3. Отдельно стоящий склад муки:
1—приемный щиток; 2—силос длямуки; 3—фильтр; 4 — тензометрические датчики для определения массы муки в силосах; 5 — питатели для подачи муки в производство.
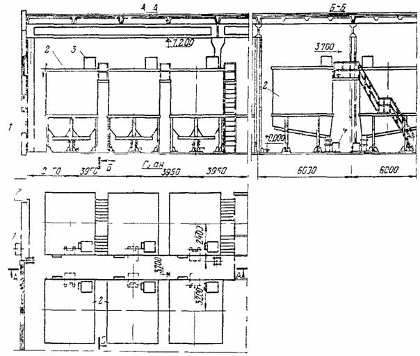
Встроенные бестарные склады муки. Схема данного склада показана на рис. 4. Склад размещен в торцевой части хлебозавода. Над бестарным складом отсутствуют другие помещения.
Рис 3.4 Встроенный в здание хлебозавода бестарный склад муки с бункерами ХБУ:
1—приемный щиток 2— бункера для муки 3 — фильтры 4 — воздуходувка
Склады бестарного хранения муки открытого типа. Склады данного типа имеют следующие преимущества: отпадает необходимость в затратах времени и средств на строительство зданий для мучных складов с системами отопления, освещения, вентиляции и т. д.; значительно сокращаются сроки проектирования и монтажа установок; снижаются эксплуатационные расходы (на отопление, текущий и капитальный ремонт зданий и т. д.); значительно уменьшается опасность взрыва; ликвидируется возможность появления мучных вредителей; упрощается обслуживание автоматики.
Эксплуатация таких складов показала, что они успешно работают в течение всего года, даже при температуре —30°С, так как мука является плохим проводником тепла и во всем ее объеме, за исключением слоя, прилегающего к стенкам бункера, сохраняется первоначальная температура.
В зависимости от типа применяемых бункеров имеются склады с бункерами М-137 и ХЕ-233.
Склад муки с бункерами М-137 (рис.3.5) предусматривает установку 12 металлических бункеров в четыре ряда по три бункера в каждом. Диаметр каждого из них 3 м, вместимость 32—35 т. Такое количество бункеров позволяет одновременно хранить несколько сортов муки, производить ее санитарную обработку.
Рис. 3.5. Склад муки открытого типа с бункерами М-137:
1—бункер для муки; 2—фильтр встряхивающий; 3 — питатель.
Для взвешивания и учета муки, поступающей на хранение и в производство, бункера имеют четыре датчика 1ЭДВУ-7 электронно-тензометрического весодозирующего устройства.
Бункера устанавливают на бетонной открытой площадке. На нижней части бункера размещают технологическое оборудование. Поэтому ее защищают от метеорологических воздействий индивидуальной для каждого бункера металлической конструкцией цилиндрической формы с дверью. Для обрушения сводов муки в бункере установлено два вибратора. Для обслуживания верхней части бункеров и фильтров предусмотрены металлические ограждения, переходные мостики на отметке Ими лестницы.
Склад муки с бункерами М-137 работает по следующей схеме. Трубопроводы муки от питателей, расположенных под двумя рядами бункеров (6 шт.), соединены с помощью шестипозиционного переключателя в один трубопровод, от других шести бункеров— в другой трубопровод. По двум трубопроводам мука аэрозоль-транспортом подается в производство. Предусматривается одновременно подача муки в производство только по одной линии. При необходимости работы одновременно двух линий аэрозоль-транспорта количество воздухонагнетателей должно быть соответственно увеличено.
Рис. 3.6. Склад муки открытого типа с бункерами ХЕ-233:
1—бункер для муки; 2—фильтр встряхивающий; 3 — стойка тензодатчика; 4 — питатель.
Склад муки с бункерами ХЕ-233 (рис. 3.6) состоит из шести бункеров в 2 ряда по три бункера в каждом ряду. Каждый бункер имеет диаметр 5 м, вместимость 63—64 т.
Бункера устанавливают на опорах; между опорами и бункером располагаются датчики тензометрического весодозирующего устройства. В нижней части бункера располагают технологическое оборудование и датчики. Поэтому ее ограждают облегченной металлической конструкцией. Для обслуживания люков бункеров и фильтров на отметках 4,8 и 8,9 м устраивают площадки.
Склад муки с бункерами ХЕ-233 работает следующим образом. Трубопроводы муки от питателей, расположенных под бункерами, соединены с помощью трехпозиционного переключателя s один трубопровод, другого ряда—в другой трубопровод. По двум трубопроводам мука аэрозольтранспортом подается в производство. Предусматривается работа одновременно только одной линии.
Производительность линий аэрозольтранспорта для двух вариантов составляет 4 т. муки в час.
Для подготовки сжатого воздуха предусмотрена установка газодувок 1А22-80-2А, которые устанавливают на открытой площадке, примыкающей к складу бестарного хранения муки. Длина трубопровода муки от бункеров до просеивателя, установленного па хлебозаводе, должна быть не более 60 м, а длина трубопровода сжатого воздуха от газодувки к питателю — не более 20 м. Каждая газодувка закрыта звукопоглощающим защитным кожухом. Воздух забирается газодувками через шумоглушители. В шумоглушитель входит фильтр для очистки воздуха и устройство для глушения шума на всасывающем воздуховоде.
Трубопроводы сжатого воздуха от газодувок объединены в один общий трубопровод, из которого воздух подается по четырем линиям: по одной линии сжатый воздух подается к питателям, установленным под бункерами бестарного хранения муки, по второй линии—на продувку трубопроводов муки, по третьей—для возможной подачи сжатого воздуха на хлебозавод к питателям, установленным под просеивателями. При применении на хлебозаводе механического транспорта муки следует устанавливать только две газодувки.
