Технология приготовления хлеба
Компрессоры устанавливают вместо газодувок при необходимости транспортирования муки от склада до производственных бункеров на расстояние до 100 м. Компрессорная станция работает следующим образом. Воздух забирается компрессорами непосредственно из атмосферы через ячейковые унифицированные фильтры ФЯР. Сжатый воздух поступает в конечный холодильник ХРК-9, затем в маслоотделитель 100-ОММ и воздухосборник. Из воздухосборника воздух поступает в воздухоочиститель с маслоотделителем и фильтром ХВО-6, а затем к потребителям.
Сжатый воздух распределяется по четырем линиям. По одной линии сжатый воздух подается к питателям, установленным под бункерами в складе муки, по второй — на обрушение сводов муки в бункерах (только при варианте с бункерами ХЕ-233), по третьей — на продувку трубопроводов муки и четвертая линия предусматривается для подачи сжатого воздуха к питателям, установленным на линиях под просеивателями. Следует отметить, что одновременно можно эксплуатировать только одну просеивательную линию.
3.4. Установки механического транспорта
К установкам механического транспорта относятся спуски и скаты, ручные тележки, вилочные погрузчики, конвейеры разных типов.
Спуски и скаты. Для разгрузки мешков с мукой, солью и других грузов из вагонов и автомашин в склады, а также передачи грузов с этажа на этаж применяют спуски, которые бывают прямые и спиральные.
Прямые спуски (наклонные плоскости, лотки, трубы) применяют для перемещения грузов одновременно в вертикальном и горизонтальном направлениях. Наклон спуска обычно равен 20—25°. Наклонные плоскости и лотки изготавливают из деревянных гладкостроганых досок толщиной 30—50 мм.
Спиральные винтовые спуски применяют при транспортировании грузов вертикально вниз. Они представляют собой расположенный по винтовой линии желоб (чугунный или деревянный), который укрепляют вокруг вертикальной колонны. Наружный диаметр его чаще всего равен 1,5—2,0 м.
Чугунные спуски делают из отдельных винтовых звеньев, надеваемых на общую ось и соединяемых болтами. Перемещение грузов вниз может производиться также свободным падением по трубе. На хлебозаводах с многоэтажным размещением технологического оборудования тесто к тестоделительным машинам, как правило, подают по вертикальной трубе.
Ручные тележки и вилочные погрузчики. Для перевозки грузов внутри предприятия применяют ручные тележки (рельсовые и безрельсовые), а также вилочные погрузчики.
Рельсовые тележки используют только при транспортировании груза на большое расстояние по прямой.
Безрельсовые тележки применяют для внутризаводского транспорта при относительно небольших, но сложных трассах. По конструкции ручные тележки могут быть двух-, трех- и четырехколесными.
На мучных складах предприятий малой и средней мощности применяют подъемно-транспортные тележки.
Для механизации работ на мучных складах применяют автопогрузчики и электропогрузчики. Наибольшее применение получили электропогрузчики, так как они более удобны в эксплуатации, имеют меньшие размеры и не загрязняют воздух отработанными газами. Электропогрузчик предназначен как для перемещения, так и для штабелирования мешков с мукой и других грузов. Он работает следующим образом: груз укладывают на поддон (площадку), погрузчик перемещается по направлению к грузу, вилки подходят под поддон, затем рама вместе с вилками отклоняется назад на 8—10°, и груз приподнимается. Наклон вилок в сторону погрузчика обеспечивает устойчивое положение перемещаемого груза. Если необходимо уложить груз в штабель, вилки электропогрузчика поднимаются. Наибольшая высота подъема у погрузчиков различных марок колеблется от 1500 до 2800 мм.
Электропогрузчик приводится в движение с помощью электродвигателя постоянного тока, питаемого от аккумуляторной батареи. Для движения вилок по раме и наклона рамы служит гидравлический привод. Насос гидропривода работает от отдельного электродвигателя. Аккумуляторные батареи погрузчика необходимо заряжать через каждые 7-8 ч работы. Электропогрузчик обслуживает специально обученный водитель.
Конвейеры. По конструкции рабочего несущего органа различают конвейеры ленточные, скребковые, ковшовые, винтовые и др.
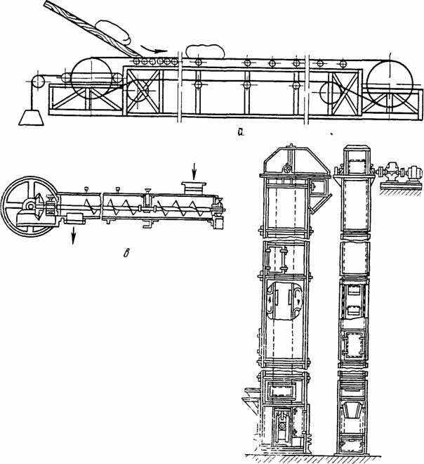
Ленточные конвейеры (рис. 3.7, а) получили широкое распространение, так как они более экономичны, плавно и бесшумно работают и просты по конструкции. Эти конвейеры состоят из бесконечной ленты, ведущего и натяжного барабанов и рамы, по длине лента поддерживается опорными роликами или гладким настилом.
Рис. 3.7 Конвейеры: а – ленточный транспортер, б – ковшовый элеватор, в – винтовой конвейер (шнек).
На предприятиях хлебопекарной промышленности ленточные конвейеры (подвижные и стационарные) применяют для горизонтального и наклонного перемещения мешков с мукой, кусков теста и пр.
Для транспортировки муки в мучных складах при бестарном хранении получили широкое распространение конвейеры с погруженными скребками (редлеры). Продукт перемещается в закрытом желобе сплошным потоком с помощью цепи.
Скребковые конвейеры сплошного волочения делят на следующие группы: конвейеры, предназначенные для перемещения материалов по горизонтальному направлению или под углом, меньшим, чем угол естественного откоса транспортируемого материала; в большинстве случаев тяговым органом в данной группе является пластинчатая цепь с широкими звеньями; конвейеры, предназначенные для перемещения материалов в вертикальном направлении; в качестве тягового органа применяют цепи с контурными лопатками или захватами
Для подъема муки на хлебопекарных предприятиях применяют ковшовые элеваторы—нории. Ковшовый элеватор (рис. 3.7, б,) состоит из вертикально-замкнутого тягового элемента с жестко прикрепленными к нему ковшами. Тяговый элемент огибает верхний приводной и нижний натяжной барабаны (или звездочки). Тяговый элемент (цепь или лента) с ковшами получает движение от привода и предварительное натяжение от натяжного устройства. Мука подается в загрузочный патрубок нижней части элеватора и разгружается в патрубок верхней части элеватора.
Для равномерной подачи муки в норию (в количестве, не превышающем ее пропускную способность) в нижней части элеватора размещается крыльчатый питатель, приводимый в движение от вала натяжного барабана.
Для перемещения муки и других сыпучих грузов (соль, сахар) в горизонтальном и вертикальном направлениях применяют винтовые конвейеры, называемые шнеками (рис.3.7, б).
Принцип действия горизонтальных винтовых конвейеров заключается в следующем. Силой трения о стенки желоба, а также под действием собственной массы транспортируемый материал удерживается от вращения и перемещается в осевом направлении. В вертикальных винтовых конвейерах, кроме того, горизонтальный шнек загрузочного устройства конвейера создает нагнетающее действие.
Винтовые конвейеры имеют простую конструкцию и небольшие габариты. Уход за ними несложен, имеется возможность герметизации транспортируемых грузов. Однако в связи с большим Удельным расходом энергии их применяют для перемещения груза на небольшое расстояние (до 40, редко до 60 м).
