2-этажный 3-секционный 18-квартирный жилой дом в г. МирномРефераты >> Строительство >> 2-этажный 3-секционный 18-квартирный жилой дом в г. Мирном
ΨА1 = 0,4 +
=1,86 ψn1 = 0.4 +
=0,88
Коэффициент остекленности Кост.=
Сечение 3
Рис. 3.5.
Таблица 3.5
|
Наименование нагрузок |
эксцентриситет, е |
Предельное состояние | ||||
|
I |
Коэффициент надежности, γf |
II | ||||
|
NII, кН/м.п |
МII, кН/м.п. |
NI, кН/м.п |
МI, кН/м.п | |||
|
Постоянные нагрузки | ||||||
|
Собственный вес стеновых блоков 13*3 |
0 |
39.00 |
0 |
1.10 |
42.90 |
0 |
|
Собственный вес стены 15.0*9.04 |
0 |
135.60 |
0 |
1.15 |
155.94 |
0 |
|
Итого |
135.60 |
0 |
1.15 |
155.94 |
0 | |
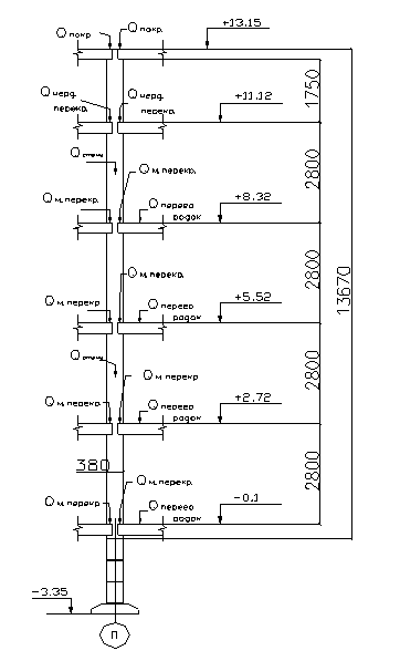
Сечение 4
Рис. 3.6.
Таблица 3.6
|
Наименование нагрузок |
эксцентриситет, е |
Предельное состояние | ||||
|
I |
Коэффициент надежности, γf |
II | ||||
|
NII, кН/м.п |
МII, кН/м.п. |
NI, кН/м.п |
МI, кН/м.п | |||
|
Постоянные нагрузки | ||||||
|
Собственный вес перекрытия 4*6*3.36 |
0 |
80.64 |
0 |
1.16 |
93.54 |
0 |
|
Собственный вес чердачного перекрытия 6*2.58 |
0 |
15.48 |
0 |
1.18 |
18.19 |
0 |
|
Собственный вес перегородок 4*0.6*6 |
0 |
14.40 |
0 |
1.20 |
17.28 |
0 |
|
Собственный вес покрытия 6*2.78 |
0 |
16.68 |
0 |
1.15 |
19.18 |
0 |
|
Собственный вес стеновых блоков 4.5*13 |
0 |
58.50 |
0 |
1.15 |
67.28 |
0 |
|
Собственный вес стены 13.67*6.84 |
0 |
123.58 |
0 |
1.10 |
135.93 |
0 |
|
Итого |
309.28 |
0 |
1.10 |
340.20 |
0 | |
|
Временные нагрузки | ||||||
|
Снеговая 1.5*6*0.95 |
0 |
8.55 |
0 |
1.40 |
11.97 |
0 |
|
Полезная нагрузка на перекрытие 1.5*0.91*4*0.77*6 |
0 |
25.23 |
0 |
1.40 |
35.32 |
0 |
|
Итого |
33.78 |
0 |
1.40 |
47.29 |
0 | |
|
Всего |
343.05 |
387.49 | ||||
