Проектирование 16-ти этажного 2-х секционного жилого дома в ЕйскеРефераты >> Строительство >> Проектирование 16-ти этажного 2-х секционного жилого дома в Ейске
ВЫВОД: в данной комнате по расчету необходимо применять комбинированное освещение, у стены противоположной оконному проему обязательно повесить светильники.
11. Расчет перекрытия на ударный шум
Расчет на ударный шум производим в соответствии со СНиП II-12-77 “Защита от шум”.
Определяем изоляцию от ударного шума междуэтажного перекрытия, состоящего из несущей железобетонной плиты толщиной 140мм (2400кг/м3), сплошного слоя древесноволокнистой плиты толщиной 50мм (250кг/м3), цементно-бетонной стяжки толщиной 20мм (1200кг/м3) и линолеумного покрытия толщиной 3мм (1100кг/м3).
Определяем значение поверхностных плотностей элементов перекрытия
m1=2400*0.14=336кг/м2
m2=1200*0.02+1100*0.003=27.3кг/м2
m3=250*0.05=12.5кг/м2
для значения m1 строим частотную характеристику требуемого снижения приведенного уровня ударного шума.
Находим нагрузку на звукоизолирующий слой М=273+1500=1730Па
Где 273Па-постоянная нагрузка, 1500Па - временная нагрузка на перекрытие.
Динамический модуль упругости древесноволокнистой плиты б = 1.4*106 Па, статический модуль – E =3*105Па.
Толщина упругой прокладки в сжатом состоянии
D=d0*(1- М /E)=0.05*(1-1730*103/3*105)=0.0498м
Где d0 – толщина упругой прокладки в несжатом состоянии.
Находим К= б / D =1.4*106/0.0498=2.81*108Па – коэффициент жесткости упругого основания.
Определяем резонансную частоту колебаний на упругом основании
f0= 0.05 ( К / m2 ) 1/2=0.05*(2.81*108/27.3)1/2 =160 Гц
Для построения расчетной частотной характеристики снижения приведенного ударного шума, при значении = m1/ m2=336/27.3=12.3 используем следующую формулу;
L2 = 10lg(1.17+a2*(a2-1.84)), где а = f / f0
|
Частота, Гц |
Вычисленное Значение дБ |
Требуемое Значение дБ |
Отклонение дБ |
Сдвинутые Значения дБ |
Новые откло- нения |
|
1 |
2 |
3 |
4 |
5 |
6 |
|
100 |
0 |
0 |
0 |
6 |
-6 |
|
125 |
0 |
0 |
0 |
6 |
-6 |
|
160 |
0 |
0 |
0 |
6 |
-6 |
|
200 |
0 |
4 |
-4 |
10 |
-6 |
|
250 |
4 |
8 |
-4 |
14 |
-6 |
|
320 |
10 |
12 |
-2 |
18 |
-8 |
|
400 |
15 |
14 |
1 |
20 |
-5 |
|
500 |
19 |
16 |
3 |
22 |
-1 |
|
640 |
24 |
18 |
6 |
24 |
0 |
|
800 |
27 |
20 |
7 |
26 |
1 |
|
1000 |
30 |
22 |
8 |
28 |
2 |
|
1250 |
32 |
24 |
8 |
30 |
2 |
|
1600 |
34 |
26 |
8 |
32 |
2 |
|
2000 |
36 |
28 |
8 |
34 |
2 |
|
2500 |
38 |
30 |
8 |
36 |
2 |
|
3200 |
40 |
32 |
8 |
38 |
2 |
|
55 |
-31 |
Сумма отклонений составляет 55 дБ. Среднее отклонение составляет 55/16=3.44 , что более 2дБ, смещаем нормативную кривую вверх на 6 дБ. Среднее отклонение составляет -31/16 = 1.98 < 2 дБ, таким образом, показатель изоляции ударного шума равен +6 дБ, что обеспечивает нормативные требования звукоизоляции для жилых помещений +3 дБ.
Находим индекс приведенного уровня ударного шума
Ly = Lyo - дLy =70-6 = 64 дБ < 67 дБ, что составляет норму для междуэтажных перекрытий.
Ly – индекс приведенного уровня ударного шума под перекрытием
Lyo- индекс приведенного уровня ударного шума плиты перекрытия
д Ly- снижение приведенного уровня ударного шума звукоизолирующим слоем
Lyн- нормативный индекс приведенного уровня ударного шума принимаемый по таблице СНиПа.
ВЫВОД:
Принимаемая конструкция пола имеет достаточный индекс изоляции от ударного шума.
ЖБК. РАСЧЕТНО-КОНСТРУКТИВНАЯ ЧАСТЬ
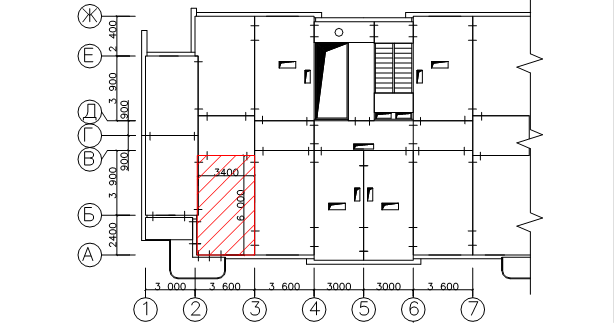
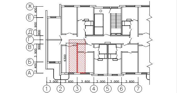
1. Расчет плиты перекрытия и внутренней несущей беспроемной стены
Плита имеет параметры 6,0х3,4м. Оперта на несущие стены по трем сторонам.
Внутренняя несущая беспроемная стена имеет параметры: высота 49,3 м, ширина 6,3 м., толщина 0,18 м. Жестко защемлена в фундамент.
Конструктивная схема перекрытия
Конструктивная схема стены
