Проектирование 16-ти этажного 2-х секционного жилого дома в ЕйскеРефераты >> Строительство >> Проектирование 16-ти этажного 2-х секционного жилого дома в Ейске
Производим расчет плиты перекрытия:
2 Сборная плита перекрытия сплошного сечения
Исходные данные:
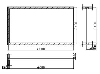
Плита толщиной 140мм в конструктивной ячейке 6,0´3,4м сборного здания с внутренними панельными стенами и навесными фасадными панелями.
Расчетная схема плиты – плита защемлена по трем сторонам и не имеет опор по четвертой стороне.
Расчетные пролеты : l1 = 6000-140=5860мм; l2 =3400-140/2=3310мм, где 140мм – толщина стен .
Соотношение сторон плиты l1/l2=5860/3310=1,8 > 1,5 – плита работает на изгиб в одном направлении.
Материалы для плиты:
Бетон
Бетон тяжелый класса В20 , Rbn = Rb,ser = 15МПа, Rb,tn= Rb,ser= 1,4МПа , Rb=11,5 МПа, Rbt=0,9 МПа, коэффициент условия работы бетона
=0.9
Плита подвергается тепловой обработке при атмосферном давлении. Начальный модуль упругости Еb =24*103МПа. К трещиностойкости плиты предъявляются требования 3-й категории. Технология изготовления плиты – агрегатно – поточная. Натяжение напрягаемой арматуры осуществляется электротермическим способом.
Арматура
- преднапрягаемая: стержни периодического профиля класса A-IV Rs = 510МПа, Rsn=Rs,ser=590МПа , Es =19*104 МПа.
- ненапрягаемая : проволочная арматура класса Вр-I Rs=365МПа, Rsw = 265МПа, Es =17*104 МПа.
Определение нагрузок и усилий в плите:
Нагрузка на 1 м2 перекрытия в кН
|
Вид нагрузки |
qнор, кН/м2 |
gf |
qрас, кН/м2 |
|
1. Линолеум d=3 мм r= 1800 кг/м3 |
0,063 |
1,3 |
0,082 |
|
2. Цементно – песчаная стяжка d=20 мм r= 1800 кг/м3 |
0,63 |
1,3 |
0,82 |
|
3. Древесно – волокнистая плита d=50 мм r= 550 кг/м3 |
0,050 |
1,3 |
0,065 |
|
4. Железобетонная плита d=140 мм r= 2500 кг/м3 |
3,5 |
1,1 |
3,85 |
|
Итого постоянная q |
4,243 |
4,816 | |
|
Временная нагрузка v |
1,500 |
1,3 |
1,950 |
|
в том числе длительная vL |
0,300 |
1,3 |
0,390 |
|
Кратковременная vsh |
1,200 |
1,3 |
1,560 |
|
Полная нагрузка q+v |
5,743 |
6,616 |
Расчет плиты производим в машинном варианте, а также производим расчет места, где плита работает по балочной схеме ,т.е. у края не опертого, вручную
Результаты машинного расчета:
Ручной расчет:
Расчетная схема
Расчетные нагрузки с учетом коэффициента надежности по назначению
=0.95:
Ширина расчетной полосы 1,0м.
=0,95´4,816=4,575 кН/м
=0,95´4,243=4,03кН/м
=0,95´6,616=6,285кН/м
=0,95´5,743=5,456кН/м
=0,95´4,543=4,316кН/м
Расчет плиты по предельным состояниям первой группы
Расчетные пролеты: l2 =3400-140/2=3310мм, где 140мм – толщина опорной стены.
Поперечное конструктивное сечение плиты заменяем эквивалентным прямоугольным сечением: h =14см , hо = 11см , b =100см.
Плита рассчитывается как защемленная балка, загруженная равномерно – распределенной нагрузкой.
Усилия от расчетной полной нагрузки:
- изгибающий момент на опорах
-
5,738 кН*м
- изгибающий момент в середине пролета
- ![]()
2,869 кН*м
- поперечная сила в опорах
10,402 кН
Расчетным моментом принимаем наибольший, т.е. момент на опорах и далее будем искать только расчетные величины.
Усилия от нормативной нагрузки:
- изгибающий момент на опорах
4,981 кН*м
Усилия от постоянной и длительной нагрузки:
- изгибающий момент на опорах
3,94 кН*м
Расчет по прочности сечения, нормального к продольной оси плиты
При расчете по прочности расчетное поперечное сечение плиты прямоугольное.
0,0458
При
Граничная относительная высота сжатой зоны определяется по формуле:
где
Мпа при
Величина
должна удовлетворять условию:
При электротермическом способе натяжения
