Сетевая телефонияРефераты >> Коммуникации и связь >> Сетевая телефония
Полное время ожидания и время ожидания в очереди.
![]()
Степень использования канала P вероятность отсутствия кадров в системе P0.
![]()
Используя данный метод мы определили, что при Гауссовском распределении нагрузки на канал его скорость должна составлять 2048 кбит/с. Время ожидания в очереди при этом составит 0,0107367 сек, а время передачи по каналу связи в одну сторону - 0,0046875 сек. Степень использования канала 70%, а вероятность отсутствия кадров в системе – 30%.
Технологический раздел
3. Технологическая часть.
3.1. Организация рабочего места оператора IP–телефонии.
При организации рабочего места весьма важным фактором является рабочая поза работника, т.е. положение его корпуса, головы, рук и ног относительно. Так как работник работает сидя, ему необходимо обеспечить правильную и удобную посадку, что достигается устройством опоры для спины, рук, ног, правильной конструкцией сиденья, способствующей равномерному распределению массы тела.
Важным элементом рациональной планировки рабочего места является учет индивидуальных антропометрических и психофизиологических данных работающего.
В Санитарных нормах и правилах – СанНиП 2.2.2.542-96 даются общие требования к организации и оборудованию рабочих мест с ПЭВМ.
Конструкция рабочего стола должна обеспечивать оптимальное размещение на рабочей поверхности используемого оборудования с учётом его количества и конструктивных особенностей (размер ПЭВМ, клавиатуры и др.), характера выполняемой работы.
Высота рабочей поверхности стола должна регулироваться в пределах 680-800 мм; при отсутствии такой возможности высота рабочей поверхности стола для ПЭВМ, на основании которых рассчитываются конструктивные размеры, следует считать: ширину 800,1000,1200 и 1400мм, глубину 800 и 1000мм при нерегулируемой его высоте, равной 725мм.
Рабочий стол должен иметь пространство для постановки ног, которое составляет: высоту – не менее 600мм, ширину – не менее 500мм, глубину на уровне колен – не менее 450мм и на уровне вытянутых ног – не менее 650мм.
Конструкция рабочего стула (кресла) должна поддерживать рациональную рабочую позу при работе с ПЭВМ, позволять изменять позу с целью снижения статического напряжения мышц шейно – плечевой области и спины для предупреждения утомления.
Рабочий стул(кресло) должен быть подъёмно – поворотным и регулируемым по высоте и углам наклона сиденья и спинки, а также расстоянию спинки от переднего края сиденья.
Конструкция стула должна обеспечивать:
· Ширину и глубину поверхности сиденья не менее 400мм;
· Поверхность сиденья с закругленным передним краем;
· Регулировку высоты поверхности сиденья в пределах 400-550мм и углов наклона вперёд до 150 и назад до 50;
· Высоту опорной поверхности спинки 300
мм, ширину – не менее 380мм и радиус кривизны горизонтальной плоскости – 400мм;
· Угол наклона спинки в вертикальной плоскости в пределах 0
300;
· Регулировку расстояния спинки от переднего края сиденья в пределах 260-400мм;
· Стационарные или съёмные подлокотники длиной не менее 250мм и шириной 50-70мм;
· Регулировку подлокотников по высоте над сиденьем в пределах 230
30мм и внутреннего расстояния между подлокотниками в пределах 350-500мм.
Рабочее место должно быть оборудовано подставкой для ног имеющей ширину не менее 300мм, глубину не менее 400мм,регулировку по высоте в пределах до 150мм и по углу наклона опорной поверхности подставки до 200. Поверхность подставки должна быть рифленой и иметь по переднему краю бортик высотой 10мм.
Рабочие места должны быть оборудованы соответствующей мебелью, отвечающей наиболее комфортабельным условиям работы и требованиям физиологии, психологии и эстетики.
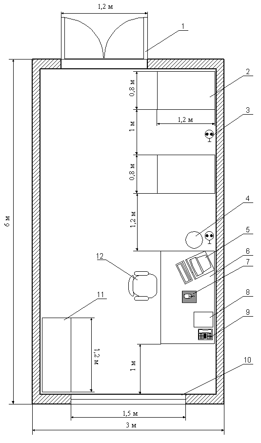
Планировкой рабочего места называют пространственное расположение основного и вспомогательного оборудования, оснастки и предметов труда, а также самого работающего, обеспечивающее рациональное выполнение трудовых движений и приёмов, благоприятные и безопасные условия труда.
![]() |
На рисунке цифрами показано:
1. Урна;
2. Персональный компьютер;
3. Рабочий стол;
4. Мышка + коврик;
5. Журнал регистрации неисправностей;
6. Телефон;
7. Кресло.
|
1. Дверь;
2. IDU – блок;
3. Розетка (евростандарт);
4. Урна;
5. Персональный компьютер;
6. Стол письменный;
7. Мышка + коврик;
8. Журнал регистрации неисправностей;
9. Телефон;
10. Окно;
11. Шкаф;
12. Кресло.
3.2. Заземление
3.2.1. Требования к заземлению электрооборудования
Заземление телекоммуникационного оборудования должно выполняться с целью:
- защиты персонала от поражения электрическим током при повреждении изоляции;
- защиты оборудования от электростатических разрядов;
- защиты оборудования от воздействия электромагнитных помех.
Стойки, металлические кронштейны с изоляторами, антенные устройства ТВ, а также металлические части шкафов, кроссов, пультов и другие металлоконструкции оборудования устройств связи должны быть заземлены Металлические шкафы, каркасы и другие металлоконструкции, на которых установлено электрооборудование напряжением выше 42В переменного тока, должны иметь защитное зануление путем соединения с нулевой жилой электрической сети напряжением 380/220 В.
Величина сопротивления заземления оборудования должна соответствовать ГОСТ 464-79. Сопротивление заземления в общей точке не должно превышать значения 2 Ом в любое время года.
Рабочее заземление оборудования связи, сигнализации и диспетчеризации следует выполнять согласно техническим требованиям на это оборудование.
3.2.2. Расчет защитного заземления

