Технология производства эпоксидных смол
Термошкаф: СМ 50/250-250-ШС
Предназначен для термической сушки сырья и материалов. Точность поддержания температуры ±5°С.
Рис
Таблица. Технические характеристики
|
Объем, л |
250 |
|
Размеры рабочей камеры ШхВхГ, мм |
650х650х600 |
|
Неравномерность температуры по объему в установившемся тепловом режиме не хуже, °С |
±5 |
|
Номинальная мощность не более, кВт |
2,0 |
|
Время разогрева до максимальной температуры не более, мин |
90 |
|
Нагрузка на полку, не более кг |
50 |
|
Габаритные размеры, мм |
700х750х650 |
|
Пожарный датчик |
Да |
|
Датчик температуры |
Термопара |
|
Масса не более, кг |
120 |
|
Напряжение питающей сети, В |
380 |
Заключение
Из всего выше сказанного можно сделать вывод, что композиции на основе эпоксидных смол обладают отличными свойствами, такими как:
o высокая адгезия к металлам, полярным пластмассам, стеклу и керамике; высокие диэлектрические свойства;
o высокая механическая прочность;
o хорошая химостойкость, водостойкость, атмосферостойкость;
o радиопрозрачность;
o отсутствие летучих продуктов отверждения
o малая усадка.
Вследствие чего находят широкое применение в промышленности. Они могут перерабатываться различными методами, а именно: литье, заливка, герметизация, формование. Используются, для изготовления слоистых пластиков, в качестве клеев, покрытий.
В связи с высокими диэлектрическими свойствами эпоксидные компаунды находят широкое применение в качестве пропиточных составов для высоковольтной изоляции, в качестве герметика для заливки плат, устройств и приборов.
Также эпоксидные смолы используются в:
o текстильной промышленности;
o лакокрасочной промышленности;
o зубопротезной и протезной промышленности;
o нефтеперерабатывающей промышленности;
o авиа-и ракетостроении;
o машиностроении;
o судостроении;
o в качестве декоративных покрытий.
Список использованной литературы
1. Ли Х., Невилл К. Справочное руководство по эпоксидным смолам. Пер. с англ. / Под ред. Н.В. Александрова – М.: Энергия, 1973 – 416с.
2. Омельченко С.И. Эпоксидные смолы – Киев: Государственное издательство технической литературы, 1962 – 104 с.
3. Черняк К.И. Эпоксидные компаунды и их применение – Л.: Судпромгиз, 1963 – 258с.
4. Воробьев А. Эпоксидные смолы // Компоненты и технологии – 2003 – №8
5. Материалы сайта компании ХИМЭКС Лимитед –
6. Е.С. Ананьева, Л.Г. Полукеева, М.С. Чилизубова, А.В. Ишков Технологические характеристики пропиточных составов на основе эпоксидианового связующего и полиметилен-n-трифенилбората при изготовлении стеклопластиковых препрегов // Интернет-ресурс: http://all-epoxy.ru/tablizi/urow1/statia06.htm
Приложение
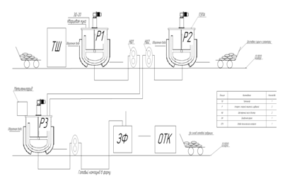
Технологическая схема линии герметизации эпоксидным компаундом
![]() |

