Проектирование металлического каркасаРефераты >> Строительство >> Проектирование металлического каркаса
– в сечении 2-2 N = -373,0 кН; M = -91,8 кНм; Q = 3,6 кН;
.
Материал колонны сталь марки С245, бетон фундамента марки М150.
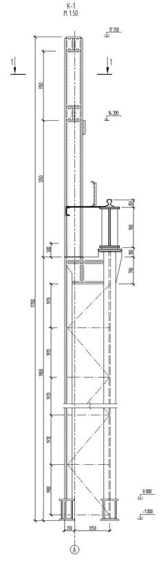
Конструктивная схема колонны показана на рис. 4.1.
4.1 Расчет верхней части колонны
4.1.1 Определение расчетных длин колонны
Расчетные длины для верхней и нижней частей колонны в плоскости рамы определим по формулам:
и
.
Так как
,
,
значения
и
определим по табл. 14.1 [1].
В однопролетной раме с жестким сопряжением ригеля с колонной верхний конец колонны закреплен только от поворота;
= 2;
= 3.
Таким образом, для нижней части колонны:
;
для верхней:
.
Расчетные длины из плоскости рамы для нижней и верхней частей равны соответственно:
;
.
Конструктивная схема колонны.
Рис. 4.1.
4.1.2 Подбор сечения верхней части колонны
Сечение верхней части колонны принимаем в виде сварного двутавра высотой:
По формуле 14.16. [1] определим требуемую площадь сечения.
Для симметричного двутавра:
;
;
,
Для стали C245 толщиной до 20 мм Ry = 240 МПа = 24 кН/см2;
.
Значение коэффициента
определим по прил. 10 [1].
Примем в первом приближении
, тогда
;
.
По прил. 8 [1] при
и
: ![]()
![]()
.
Компоновка сечения: высота стенки
,
принимаем предварительно толщину полок
.
По табл. 14.2 [1] при
и
из условия местной устойчивости
,
.
Принимаем
и включаем в расчетную площадь сечения колонны два крайних участка стенки шириной по
.
Требуемая площадь полки:
.
Из условия устойчивости верхней части колонны из плоскости действия момента ширина полки:
из условия местной устойчивости полки по формуле:
где
.
Принимаем
;
;
;
.
Геометрические характеристики сечения.
Расчетная площадь сечения с учетом только устойчивой части стенки:
.
|
Параметр |
Значение | ||
|
A |
Площадь поперечного сечения |
78.4 |
см2 |
|
a |
Угол наклона главных осей инерции |
-90.0 |
град |
|
Iy |
Момент инерции относительно центральной оси Y1 параллельной оси Y |
1776.501 |
см4 |
|
Ix |
Момент инерции относительно центральной оси X1 параллельной оси X |
26600.133 |
см4 |
|
It |
Момент инерции при свободном кручении |
20.693 |
см4 |
|
iy |
Радиус инерции относительно оси Y1 |
4.76 |
см |
|
ix |
Радиус инерции относительно оси X1 |
18.42 |
см |
|
Wu+ |
Максимальный момент сопротивления относительно оси U |
1182.228 |
см3 |
|
Wu- |
Минимальный момент сопротивления относительно оси U |
1182.228 |
см3 |
|
Wv+ |
Максимальный момент сопротивления относительно оси V |
161.5 |
см3 |
|
Wv- |
Минимальный момент сопротивления относительно оси V |
161.5 |
см3 |
|
Wpl,u |
Пластический момент сопротивления относительно оси U |
1337.8 |
см3 |
|
Wpl,v |
Пластический момент сопротивления относительно оси V |
248.88 |
см3 |
|
Iu |
Максимальный момент инерции |
26600.133 |
см4 |
|
Iv |
Минимальный момент инерции |
1776.501 |
см4 |
|
iu |
Максимальный радиус инерции |
18.42 |
см |
|
iv |
Минимальный радиус инерции |
4.76 |
см |
|
au+ |
Ядровое расстояние вдоль положительного направления оси Y(U) |
15.079 |
см |
|
au- |
Ядровое расстояние вдоль отрицательного направления оси Y(U) |
15.079 |
см |
|
av+ |
Ядровое расстояние вдоль положительного направления оси X(V) |
2.06 |
см |
|
av- |
Ядровое расстояние вдоль отрицательного направления оси X(V) |
2.06 |
см |
|
yM |
Координата центра тяжести по оси Y |
21.5 |
см |
|
xM |
Координата центра тяжести по оси X |
0.4 |
см |
