Проектирование металлического каркасаРефераты >> Строительство >> Проектирование металлического каркаса
– площадь сечения раскосов по двум граням сечения колонны.
.
Для комбинации усилий, догружающих наружную ветвь (сечение 4-4):
N2 = -508,0 кН; М2 = 827,5 кНм
Для комбинации усилий, догружающих подкрановую ветвь (сечение 4-4):
N1 = -1489,2 кН; M1 = -725,6 кНм
Устойчивость сквозной колонны как единого стержня из плоскости действия момента проверять не нужно, так как она обеспечена проверкой устойчивости отдельных ветвей.
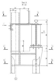
4.3 Узел сопряжения верхней и нижней частей колонны
Расчетные комбинации усилий в сечениях над уступом:
N= -373,0 кН; M = -91,8 кНм; Q = 3,6 кН;
Давление кранов
.
Прочность стыкового шва (ш1)проверяем по нормальным напряжениям в крайних точках сечения надкрановой части. Площадь шва равна площади сечения колонны.
Наружная полка:
.
Внутренняя полка:
.
Толщину стенки траверсы определяем из условия смятия по формуле:
; принимаем
Принимаем tтр=1,6 см.
Усилие во внутренней полке верхней части колонны:
.
Длина шва крепления вертикального ребра траверсы к стенке траверсы (ш2):
.
Применяем полуавтоматическую сварку проволокой марки Св-08А, d = 1,4 .2 мм.
Назначаем:
;
.
В стенке подкрановой ветви делаем прорезь, в которую заводим стенку траверсы. Для расчета шва крепления траверсы к подкрановой ветви (ш3) составляем комбинацию усилий, дающую наибольшую опорную реакцию траверсы.
Такой комбинацией будет сочетание (1, 2, 7) М = -151,8 кН·м; N = -353,8 кН:
Коэффициент 0,9 учитывает, что усилия N и M приняты для второго основного сочетания нагрузок.
Требуемая длина шва:
Из условия прочности стенки подкрановой ветви в месте крепления траверсы (линия 1-1) определяем высоту траверсы
по формуле:
где
– толщина стенки I 30Ш2;
– расчетное сопротивление срезу фасонного проката из стали С245. Принимаем
.
Проверим прочность траверсы как балки, нагруженной усилиями N, M и
.
Расчетная схема и сечение траверсы приведены на рис. 4.3.
Узел сопряжения верхней и нижней части колонны.
Рис. 4.3.
Нижний пояс траверсы принимаем конструктивно из листа 270
16 мм, верхние горизонтальные ребра – из двух листов 140
16 мм.
Геометрические характеристики траверсы.
|
Элемент сечения |
Угол поворота |
Зеркально |
|
Лист 270 x 16 | ||
|
Лист 380 x 16 |
90.0 | |
|
Лист 140 x 16 | ||
|
Лист 140 x 16 |
Габариты сечения 296.0 x 396.0 мм
Геометрические характеристики сечения
|
Параметр |
Значение | ||
|
A |
Площадь поперечного сечения |
148.8 |
см2 |
|
|
Угол наклона главных осей инерции |
0.0 |
град |
|
Iy |
Момент инерции относительно центральной оси Y1 параллельной оси Y |
21323.038 |
см4 |
|
Iz |
Момент инерции относительно центральной оси Z1 параллельной оси Z |
6094.736 |
см4 |
|
It |
Момент инерции при свободном кручении |
118.859 |
см4 |
|
iy |
Радиус инерции относительно оси Y1 |
11.971 |
см |
|
iz |
Радиус инерции относительно оси Z1 |
6.4 |
см |
|
Wu+ |
Максимальный момент сопротивления относительно оси U |
896.493 |
см3 |
|
Wu- |
Минимальный момент сопротивления относительно оси U |
1348.275 |
см3 |
|
Wv+ |
Максимальный момент сопротивления относительно оси V |
411.806 |
см3 |
|
Wv- |
Минимальный момент сопротивления относительно оси V |
411.806 |
см3 |
|
Wpl,u |
Пластический момент сопротивления относительно оси U |
1620.609 |
см3 |
|
Wpl,v |
Пластический момент сопротивления относительно оси V |
665.36 |
см3 |
|
Iu |
Максимальный момент инерции |
21323.038 |
см4 |
|
Iv |
Минимальный момент инерции |
6094.736 |
см4 |
|
iu |
Максимальный радиус инерции |
11.971 |
см |
|
iv |
Минимальный радиус инерции |
6.4 |
см |
|
au+ |
Ядровое расстояние вдоль положительного направления оси Y(U) |
6.025 |
см |
|
au- |
Ядровое расстояние вдоль отрицательного направления оси Y(U) |
9.061 |
см |
|
av+ |
Ядровое расстояние вдоль положительного направления оси Z(V) |
2.768 |
см |
|
av- |
Ядровое расстояние вдоль отрицательного направления оси Z(V) |
2.768 |
см |
|
yM |
Координата центра тяжести по оси Y |
0.0 |
см |
|
zM |
Координата центра тяжести по оси Z |
-15.815 |
см |
